1k apartment pr-t Yevropeyskoho Soyuzu 1

  • Podilskyi District pr-t Yevropeyskoho Soyuzu 1
  • Code: SF-3-249-697
  • Added by: 15.04.2026
  • Add to favorites
Market type
Primary market
Street
pr-t Yevropeyskoho Soyuzu 1
Number of rooms
1
Floor
9 Floor
Number of storeys
25 storey house
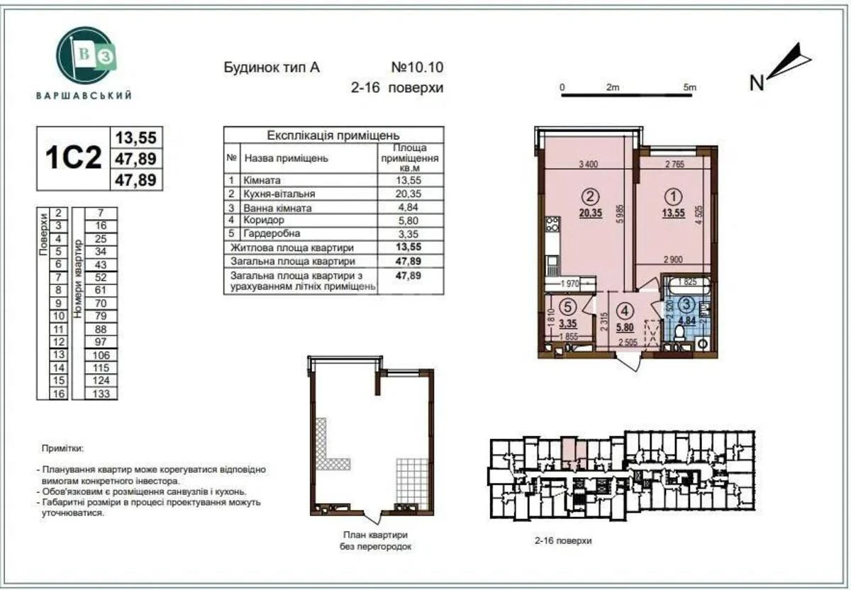
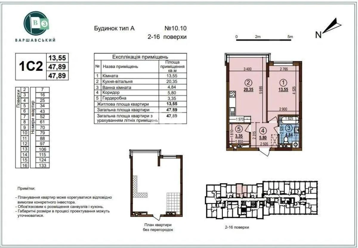
Total area
48 м2
General state
Without repair
Price:
3 130 336 UAH
72 000 USD
Description of the object

Varshavsky 3 residential complex, 1-bedroom flat. As-built condition. The floor has a laser-levelled screed; conduits for electrical wiring, a fire alarm system, and meters for cold and hot water and electricity have been installed; there are metal entrance and fire-rated doors, and Rehau PVC-U windows with double-glazing. The building has an independent power supply; the developer has installed a generator.

Similar offers