1к квартира бул. Николая Михновского 3А

  • Печерский район бул. Николая Михновского 3А
  • Код: SF-3-282-726
  • Добавлено: 24.02.2026
  • Добавить в избранное
Тип рынка
Вторичный рынок
Улица
бул. Николая Михновского 3А
Количество комнат
1
Этаж
3 Этаж
Этажность
9 этажный дом
Общая площадь
35 м2
Общее состояние
С ремонтом
Цена:
3 462 339 грн.
80 000 USD
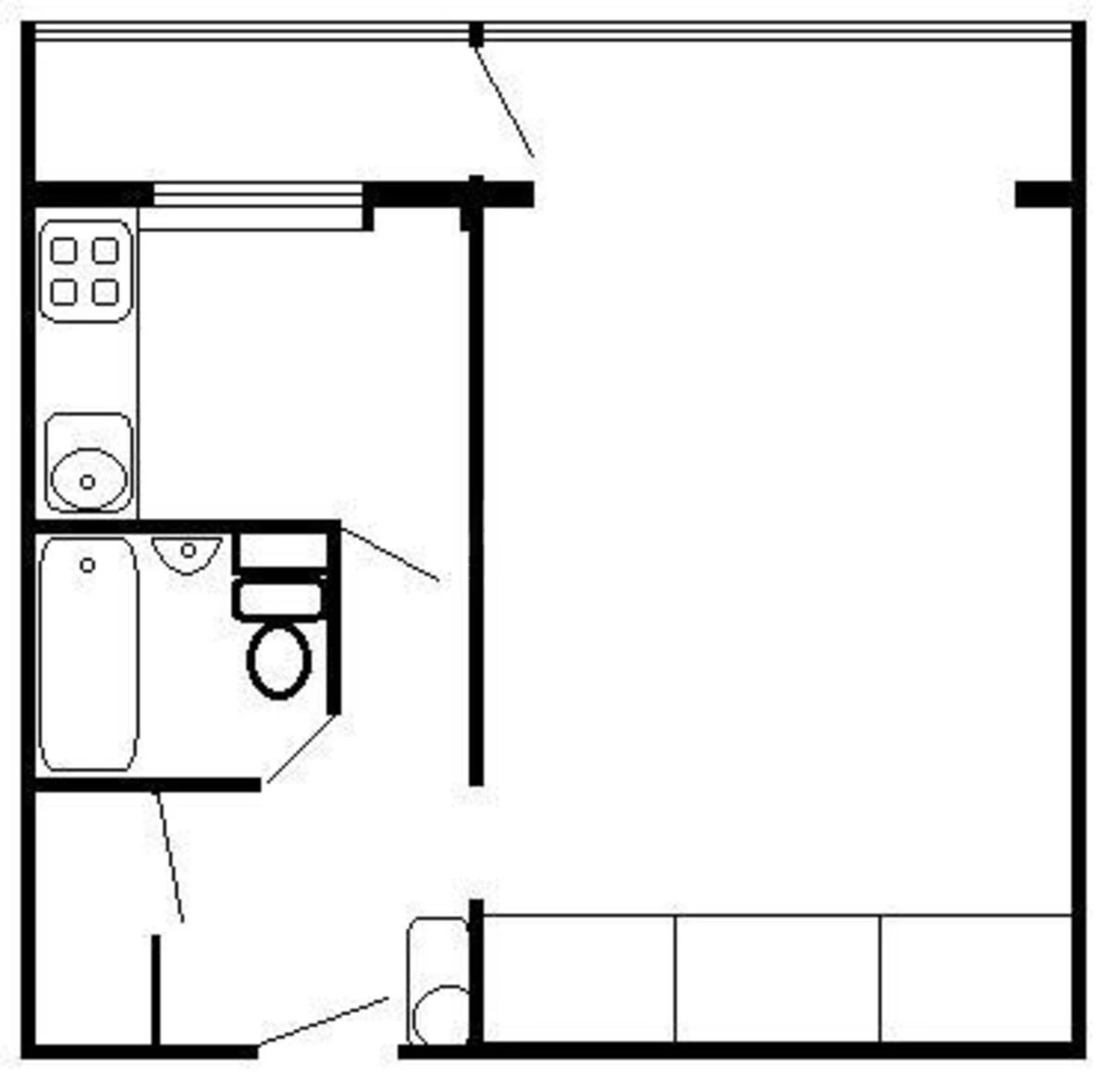
Описание объекта

1 комнатная квартира. Просторная квартира с раздельным планированием расположена всего в 3 минутах ходьбы от метро «Лыбедская» и в 15 минутах от метро «Зверинецкая». До ботанического сада можно дойти за 40 минут. Квартира с евроремонтом, полностью готова к проживанию без дополнительных вложений. Кухня встроенная и оборудована качественной техникой, включая варочную панель, духовку и холодильник. Санузел смежный, оснащен современной сантехникой, ванной и стиральной машиной. Установлены счетчики воды, газа и электричества, новые биметаллические радиаторы, кондиционер, металлопластиковые окна, ламинат, эргономичный встроенный шкаф. Панорамные окна наполняют помещение светом, а видеонаблюдение и сигнализация гарантируют безопасность. Квартира находится под круглосуточной охраной. Дом — типичный панельный «чешка» с высотой потолка 2,7 м, внутренним утеплением и чистыми подъездами. На всех этажах установлены металлопластиковые окна и плитка, проводится косметический ремонт. Подъезд оборудован домофоном, бронированными дверями и видеонаблюдением. Отопление централизованное, подогрев воды осуществляется централизованно и бойлером. Территория комплекса закрыта и охраняется, вход во двор на уровне земли, есть свободный доступ к укрытию. Рядом расположены школы, детские сады, супермаркеты и медицинские учреждения. Удобная транспортная развязка, рядом остановки общественного транспорта. Дворная инфраструктура обеспечивает комфортную жизнь: чистота, ухоженные аллеи и безопасная зона для отдыха.

Похожие предложения