1к квартира бул. Миколи Міхновського 3А

  • Печерський район бул. Миколи Міхновського 3А
  • Код: SF-3-282-726
  • Добавлено: 24.02.2026
  • Додати в обране
Тип ринку
Вторинний ринок
Вулиця
бул. Миколи Міхновського 3А
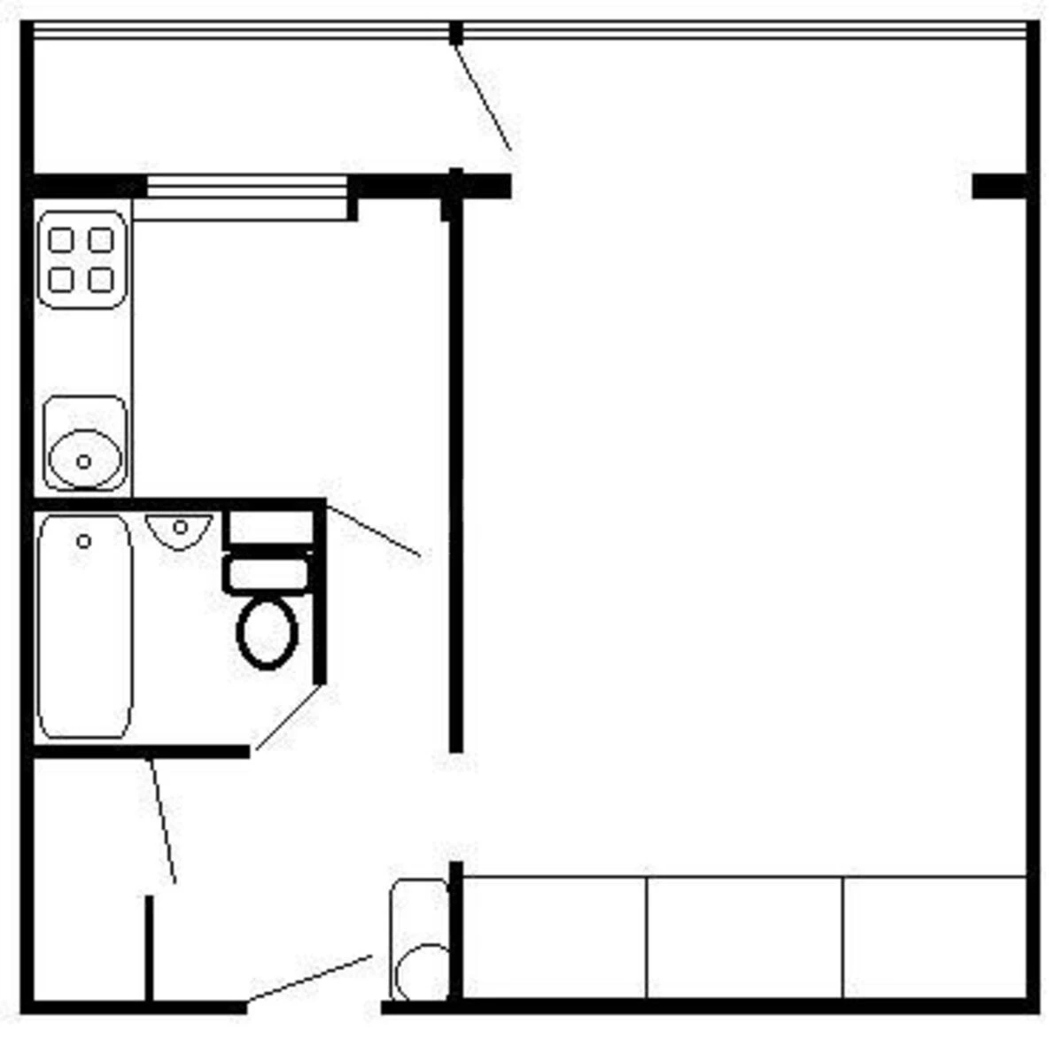
Кількість кімнат
1
Поверх
3 Поверх
Поверховість
9 поверховий будинок
Загальна площа
35 м2
Загальний стан
З ремонтом
Ціна:
3 462 339 грн.
80 000 USD
Опис об'єкту

1 кімнатна квартира. Простора квартира з роздільним плануванням розташована всього за 3 хвилини пішки від метро «Либідська» та за 15 хвилин від метро «Звіринецька». До ботанічного саду можна дійти за 40 хвилин. Квартира з євроремонтом, повністю готова до проживання без додаткових вкладень. Кухня вбудована та обладнана якісною технікою, включаючи варильну панель, духовку та холодильник. Санвузол суміжний, оснащений сучасною сантехнікою, ванною та пральною машиною. Встановлені лічильники води, газу та електрики, нові біметалеві радіатори, кондиціонер, металопластикові вікна, ламінат, ергономічна вбудована шафа. Панорамні вікна наповнюють приміщення світлом, а відеоспостереження та сигналізація гарантують безпеку. Квартира знаходиться під цілодобовою охороною. Будинок — типовий панельний «чешка» з висотою стелі 2,7 м, внутрішнім утепленням та чистими під’їздами. На всіх поверхах встановлені металопластикові вікна та плитка, проводиться косметичний ремонт. Під’їзд обладнаний домофоном, броньованими дверима та відеоспостереженням. Опалення централізоване, підігрів води здійснюється централізовано та бойлером. Територія комплексу закрита та охороняється, вхід у двір рівень із землею, є вільний доступ до укриття. Поряд розташовані школи, дитячі садочки, супермаркети та медичні установи. Зручна транспортна розв’язка, поруч зупинки громадського транспорту. Дворова інфраструктура забезпечує комфортне життя: чистота, доглянуті алеї та безпечна зона для відпочинку.

Схожі пропозиції