Об'єкт торгівлі 4Б, 470м2

  • Шевченківський район вул. Якубенківська 4Б
  • Код: SC-221-480
  • Добавлено: 25.02.2026
  • Додати в обране
Тип ринку
Вторинний ринок
Вулиця
вул. Якубенківська 4Б
Назначение
Торгове приміщення
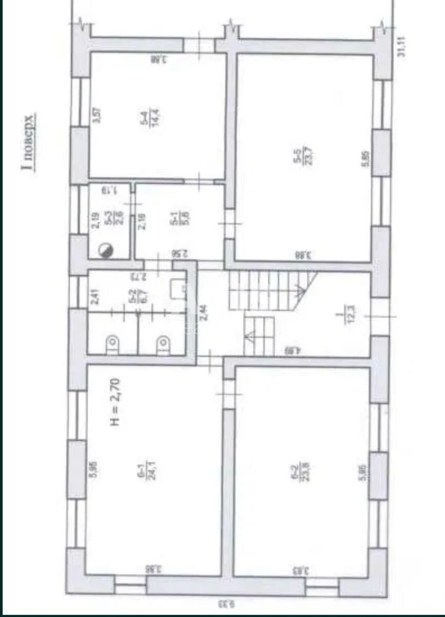
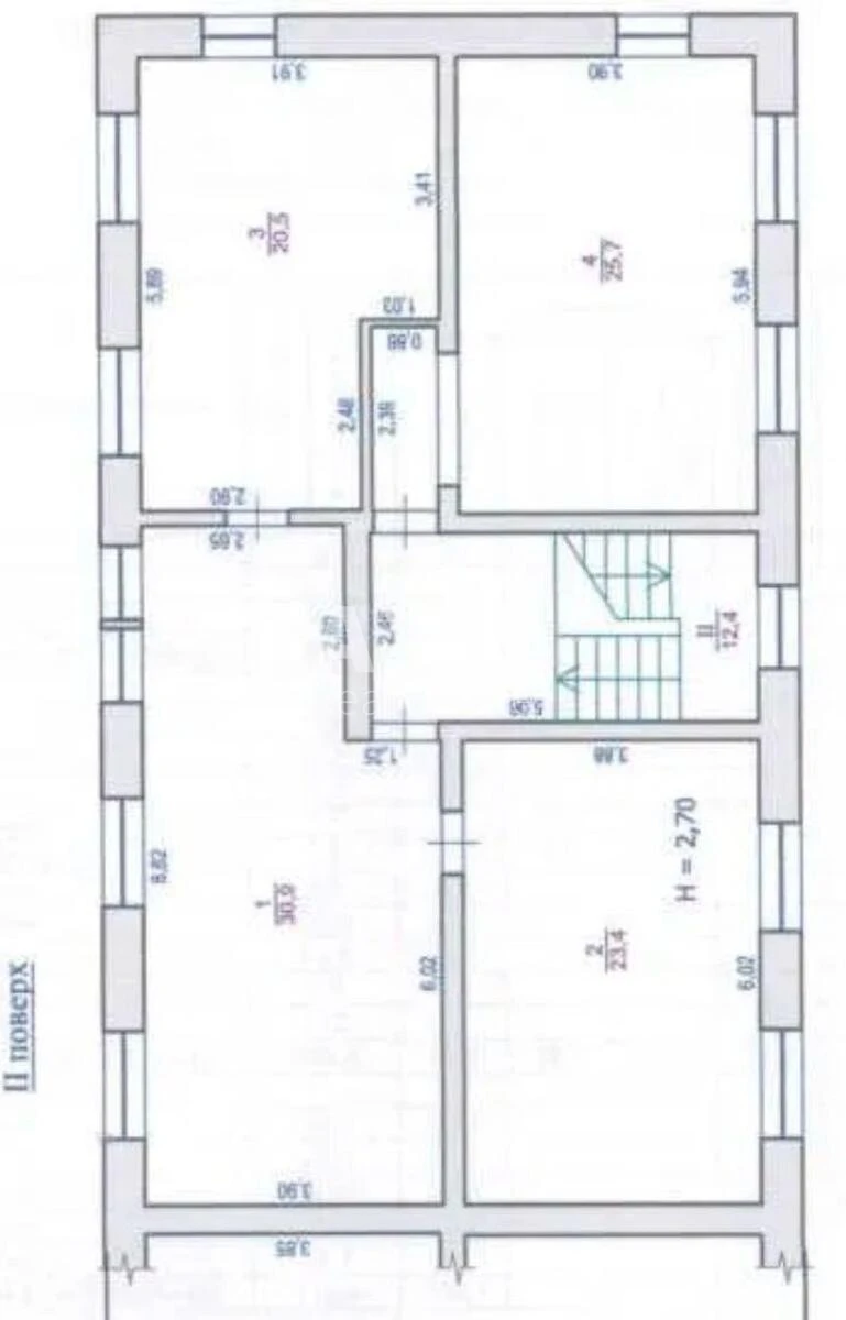
Поверх
1 Поверх
Поверховість
2 поверховий будинок
Загальна площа
470 м2
Загальний стан
З ремонтом
Ціна:
20 355 597 грн.
470 000 USD
Опис об'єкту

Приміщення вільного призначення. Територія обгороджена та має паркомісця. Санвузли на першому та другому поверхах. Два окремі фасадні входи та один вихід на задній двір. Зроблений євроремонт, пластикові вікна, кондиціонери, підлогова плитка та ламінат, підвісні стелі. Електроенергія 70 кВт, водопровід та каналізація -центральні, опалення – газовий котел. До станції метро Лук'янівська 1,9 км. У пішій доступності ТЦ Променада центр, Спорт Лайф, Новус, АТБ, Сільпо. Підійде під офіс, клініку, центр розвитку, приватну школу або дитячий садок, готель, хостел.

Схожі пропозиції