
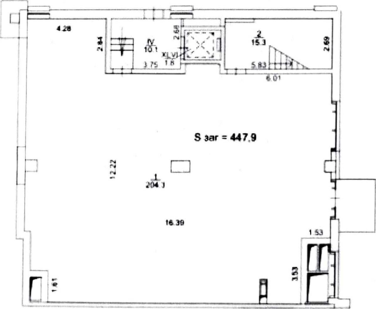
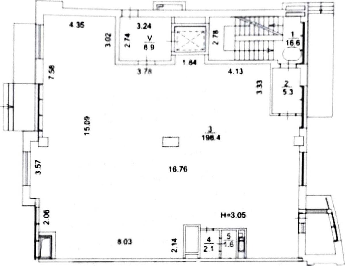
Об'єкт торгівлі вул. Саперне Поле 3, 448м2
- Додати в обране
-
Подiлитись посиланням
ЖК Бульвар Фонтанів, приміщення вільного призначення. 3 окремі входи (центральний виходить на алею фонтанів), планування Open Space. Стан приміщення – від забудовника, підведено комунікації, внаслідок чого передбачено ремонтні канікули для орендаря. Комунікації – електроенергія на все приміщення 200 кВт, вода, каналізація та опалення централізовані (лічильники). Висота у приміщеннях 3 метри. Приміщення світле, велика кількість вікон, ЖК Бізнес Класу, відмінна локація, що межує з РК Преміум Класу (Тарьян Тауер). Цільове використання - відмінно підійде під сферу обслуговування, рітейлу, клініку, косметичний салон, розвиваючі студії для дітей (поряд дитячий садок) і т.д.