Об'єкт торгівлі вул. Райдужна 25, 90м2

  • Дніпровський район вул. Райдужна 25
  • Код: RC-222-924
  • Добавлено: 25.03.2026
  • Додати в обране
Тип ринку
Вторинний ринок
Вулиця
вул. Райдужна 25
Назначение
Торгове приміщення
Поверх
1 Поверх
Поверховість
2 поверховий будинок
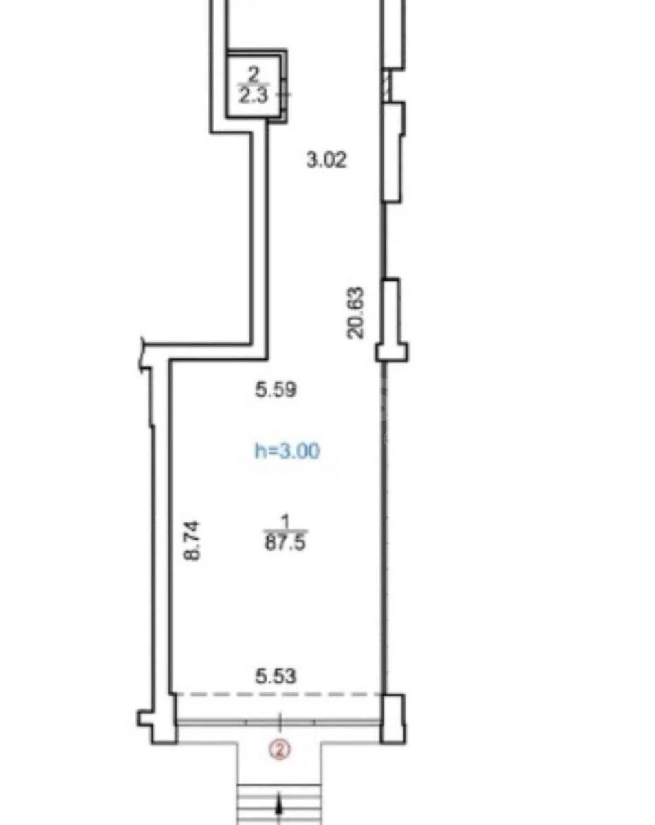
Загальна площа
90 м2
Загальний стан
З ремонтом
Ціна:
55 000 грн.
1 258 USD
Опис об'єкту

Приміщення вільного призначення. Приміщення знаходиться в центрі великого житлового масиву в окремому торговому модулі, побудованому ще в Радянські часи на перетині основних шляхів. У торговому модулі ведуть діяльність ТМ Аврора, мережевий магазин М'ЯСО, Кафе Rainbow, мережа спортклубів АтлетіКо, БЦ Domos (оренда офісних приміщень), перукарні, майстерні, автомагазин, дитячі гуртки.

Схожі пропозиції