Об'єкт торгівлі вул. Михайла Бойчука 6А, 78м2

  • Печерський район вул. Михайла Бойчука 6А
  • Код: SC-216-909
  • Добавлено: 22.10.2025
  • Додати в обране
Тип ринку
Вторинний ринок
Вулиця
вул. Михайла Бойчука 6А
Назначение
Торгове приміщення
Поверх
1 Поверх
Поверховість
5 поверховий будинок
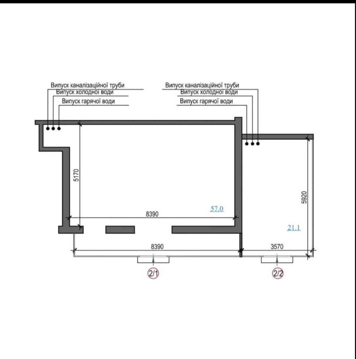
Загальна площа
78 м2
Загальний стан
З ремонтом
Ціна:
11 574 732 грн.
275 000 USD
  • AXIS Real Estate
  • AXIS Real Estate
  • AXIS Real Estate
Опис об'єкту

Приміщення вільного призначення. Орендує мережевий мінімаркет Місто Маркет. Приміщення оснащене санвузлом та всіма необхідними комунікаціями для комфортного використання: Центральний водопровід. Центральна каналізація. Електропостачання. Регулярний вивіз відходів. Зручний під’їзд по асфальтованій дорозі. Об'єкт побудований з дотриманням сучасних стандартів, що робить його ідеальним для використання під офіс, магазин, салон, кабінет або інший вид діяльності.

Додаткова інформація

Схожі пропозиції