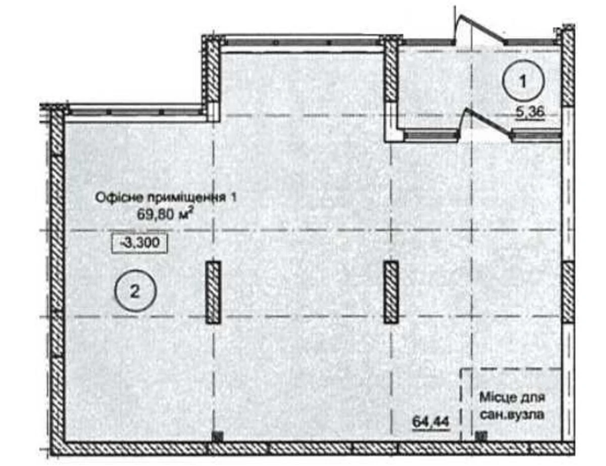
Об'єкт торгівлі вул. Михайла Максимовича 32, 69м2

  • Голосіївський район вул. Михайла Максимовича 32
  • Код: SC-219-903
  • Добавлено: 31.01.2026
  • Додати в обране
Тип ринку
Вторинний ринок
Вулиця
вул. Михайла Максимовича 32
Назначение
Торгове приміщення
Поверх
1 Поверх
Поверховість
23 поверховий будинок
Загальна площа
69 м2
Загальний стан
Без ремонту
Ціна:
10 732 330 грн.
250 628 USD
Опис об'єкту

ЖК 'LIKO-GRAD Perfect Town', приміщення вільного призначення. Стан - після будівельників. Під будь-який вид бізнесу. Також є вибір нежитлових приміщень в цьому та іншому комплексі, з орендарями продається як готовий орендний бізнес. Інфраструктура: відділення банку, банкомат, аптека, лікарня, поліклініка, житловий масив, метро, стоянка, парковка, гараж, відділення пошти, ресторан, кафе, бар, навчальні заклади, транспортна розв'язка.

Схожі пропозиції