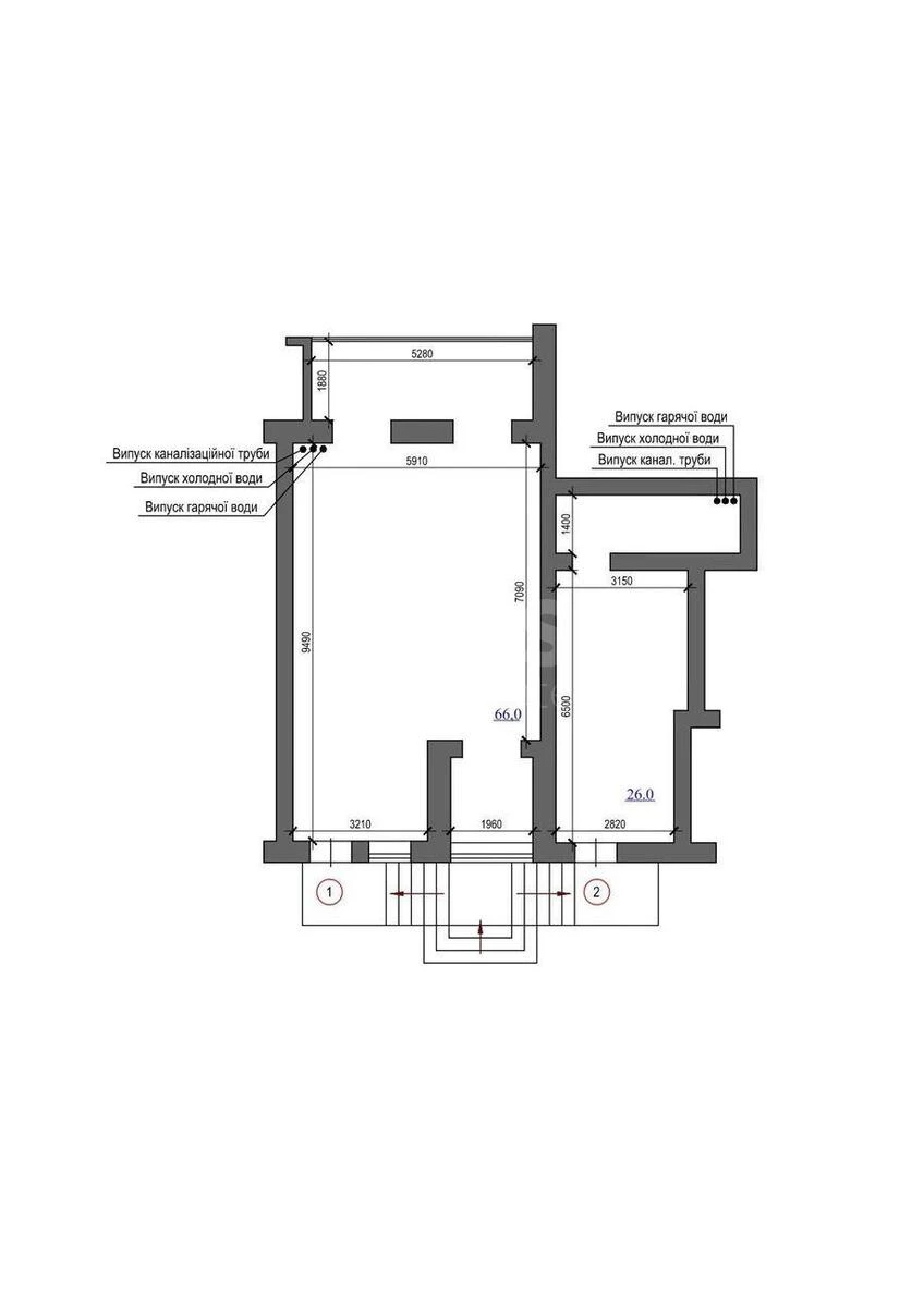
Об'єкт торгівлі вул. Межигірська 57/17, 92м2

  • Подільський район вул. Межигірська 57/17
  • Код: SC-219-918
  • Добавлено: 26.02.2026
  • Додати в обране
Тип ринку
Вторинний ринок
Вулиця
вул. Межигірська 57/17
Назначение
Торгове приміщення
Поверх
1 Поверх
Поверховість
6 поверховий будинок
Загальна площа
92 м2
Загальний стан
Без ремонту
Ціна:
13 851 693 грн.
320 000 USD
Опис об'єкту

Приміщення вільного призначення. Перший поверх. Вітринні вікна. Стан – з ремонтом. Наявні всі комунікації. Є можливість розміщення зовнішньої реклами. Великий попит на оренду фасадних приміщень в даній локації. Ліквідний актив з можливістю росту вартості.

Схожі пропозиції