Об'єкт торгівлі вул. Лебедєва-Кумача 28/32, 32м2

  • Солом'янський район вул. Лебедєва-Кумача 28/32
  • Код: RC-217-028
  • Добавлено: 27.10.2025
  • Додати в обране
Тип ринку
Вторинний ринок
Вулиця
вул. Лебедєва-Кумача 28/32
Назначение
Торгове приміщення
Поверх
1 Поверх
Поверховість
9 поверховий будинок
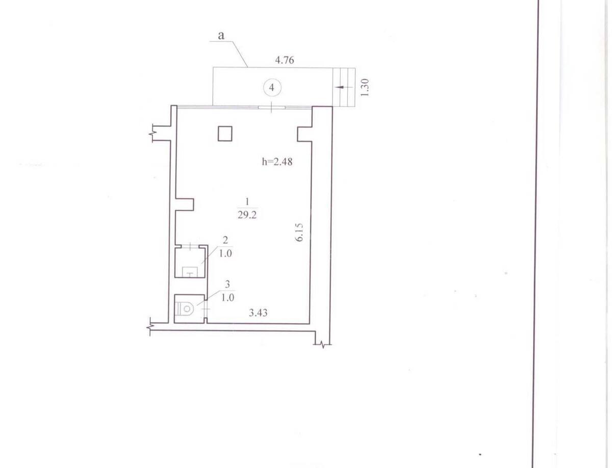
Загальна площа
32 м2
Загальний стан
З ремонтом
Ціна:
50 000 грн.
1 190 USD
  • AXIS Real Estate
  • AXIS Real Estate
  • AXIS Real Estate
Опис об'єкту

Приміщення вільного призначення. Нежитловий з окремим фасадним торцевим входом. Санвузол, вода, всі комунікації заведені. Канікули на ремонт -2 місяці, можна обговорювати. Паркування. Літній майданчик.

Додаткова інформація

Схожі пропозиції