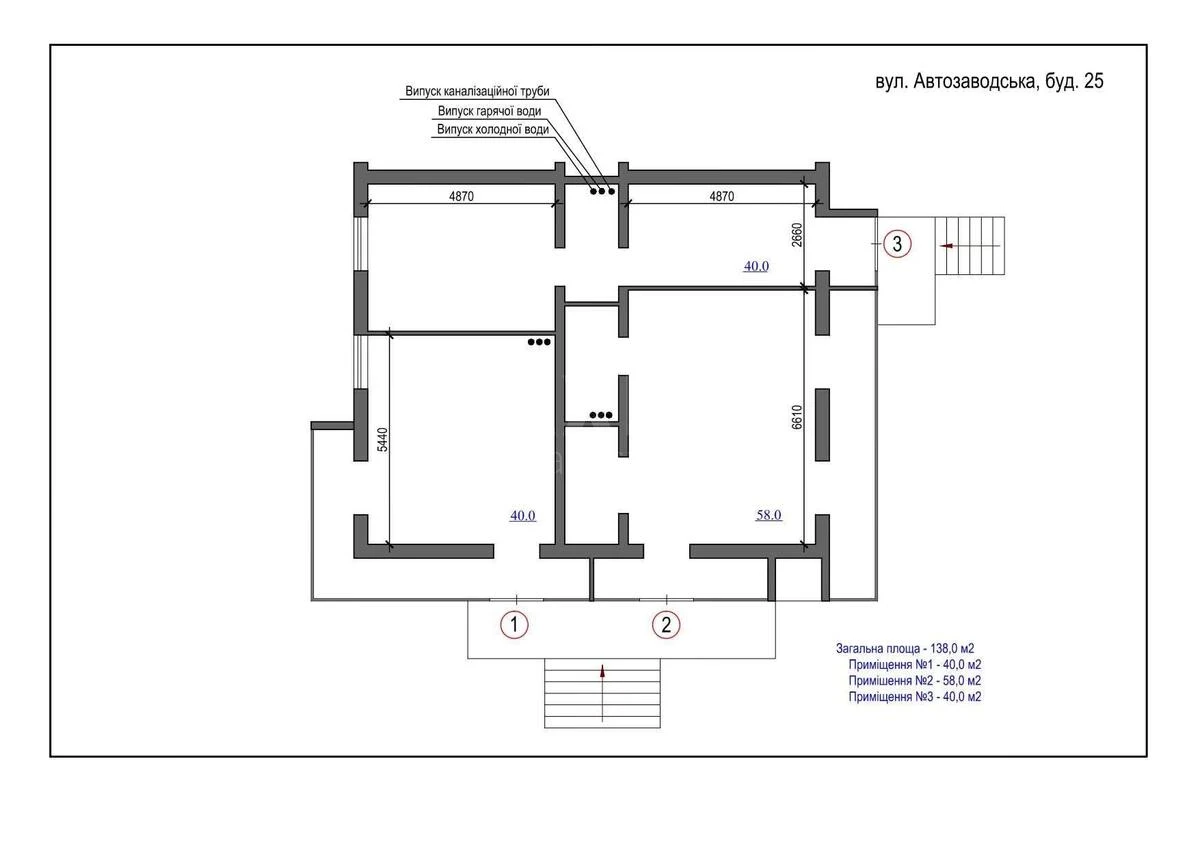
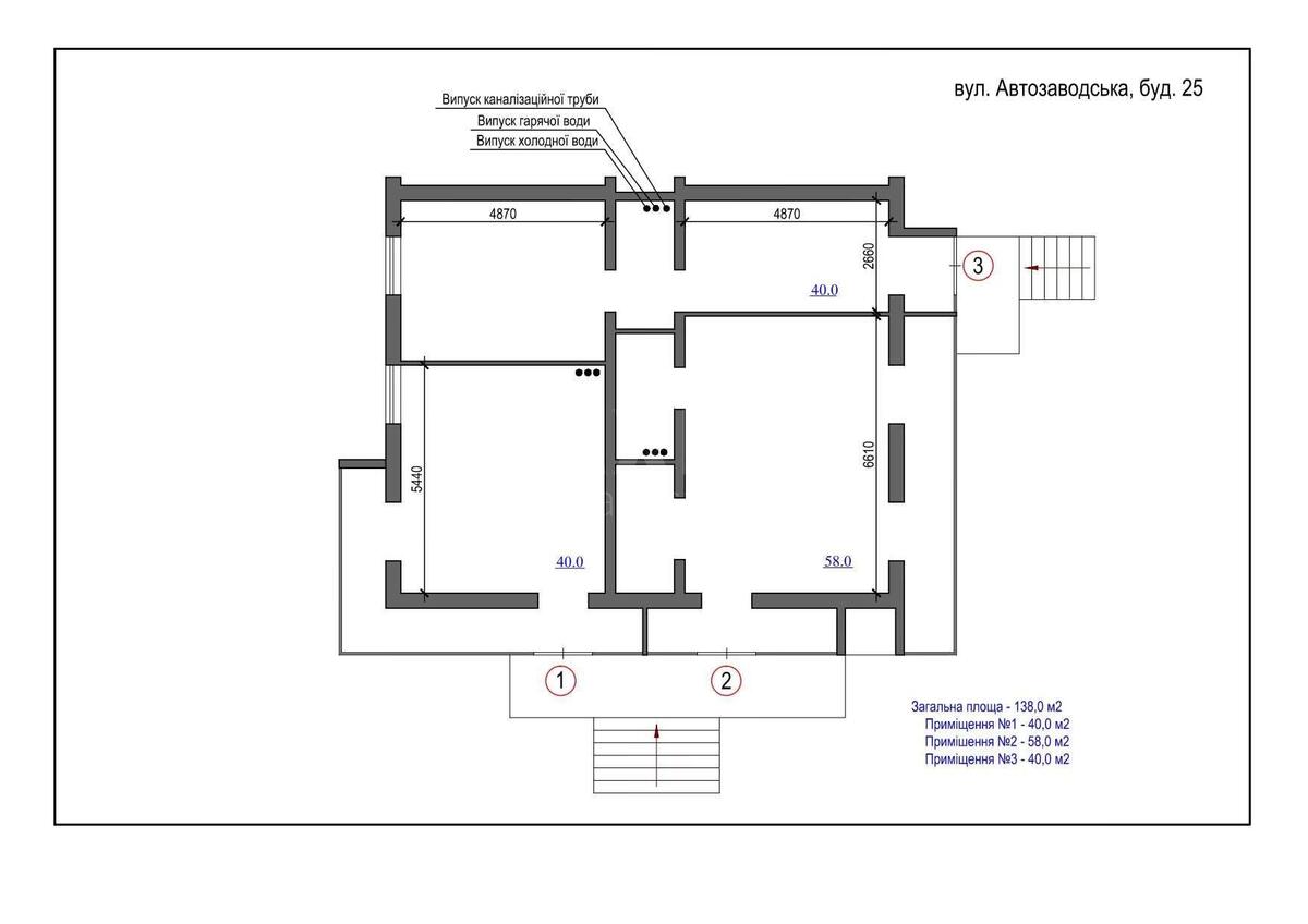
Об'єкт торгівлі вул. Автозаводська 25А, 138м2

  • Оболонський район вул. Автозаводська 25А
  • Код: SC-219-857
  • Добавлено: 31.01.2026
  • Додати в обране
Тип ринку
Вторинний ринок
Вулиця
вул. Автозаводська 25А
Назначение
Торгове приміщення
Поверх
1 Поверх
Поверховість
9 поверховий будинок
Загальна площа
138 м2
Загальний стан
З ремонтом
Ціна:
15 415 830 грн.
360 000 USD
Опис об'єкту

Приміщення вільного призначення. Перший поверх. Вітринні вікна. Стан – з ремонтом. Наявні всі комунікації. Є можливість розміщення зовнішньої реклами. Великий попит на оренду фасадних приміщень в даній локації. Ліквідний актив з можливістю росту вартості.

Схожі пропозиції