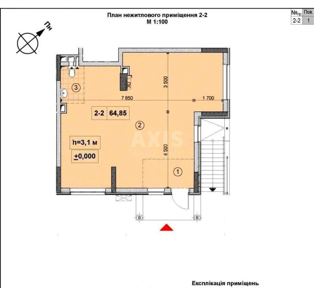
Об'єкт торгівлі пр-т Берестейський 67А, 65м2

  • Святошинський район пр-т Берестейський 67А
  • Код: RC-222-341
  • Добавлено: 30.04.2026
  • Додати в обране
Тип ринку
Вторинний ринок
Вулиця
пр-т Берестейський 67А
Назначение
Торгове приміщення
Поверх
1 Поверх
Поверховість
17 поверховий будинок
Загальна площа
65 м2
Загальний стан
Без ремонту
Ціна:
57 307 грн.
1 300 USD
Опис об'єкту

ЖК «Нивки-Парк», приміщення вільного призначення. Поверх: 1-й, фасадна частина. Розташування: кутове (торцеве). Висота стелі: 3 м. Електрична потужність: 12 кВт. Універсальне приміщення. Ідеально підійде під: аптеку, кав’ярню, продуктовий магазин, банківське відділення, барбершоп, інший сервіс, орієнтований на мешканців ЖК.

Схожі пропозиції