Об'єкт сервісу вул. Кримська 6, 2103м2

  • Голосіївський район вул. Кримська 6
  • Код: SC-222-769
  • Добавлено: 19.03.2026
  • Додати в обране
Тип ринку
Вторинний ринок
Вулиця
вул. Кримська 6
Назначение
Сервісний об'єкт
Поверх
1 Поверх
Поверховість
4 поверховий будинок
Загальна площа
2103 м2
Загальний стан
Без ремонту
Ціна:
111 357 569 грн.
2 532 200 USD
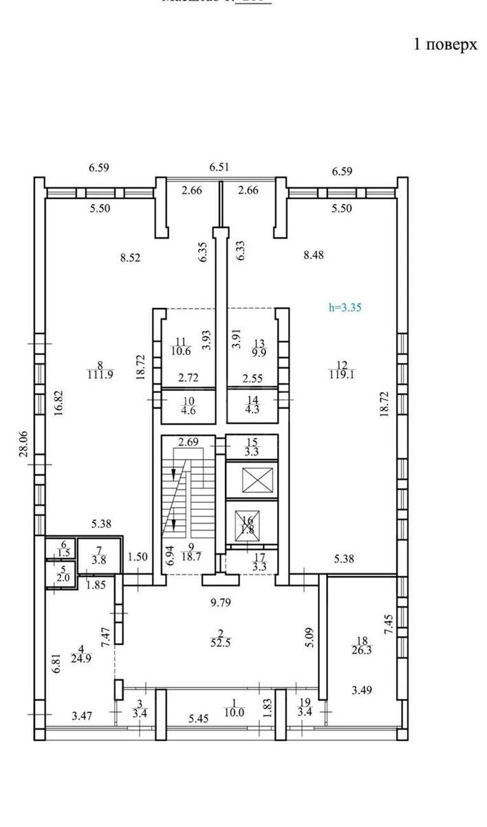
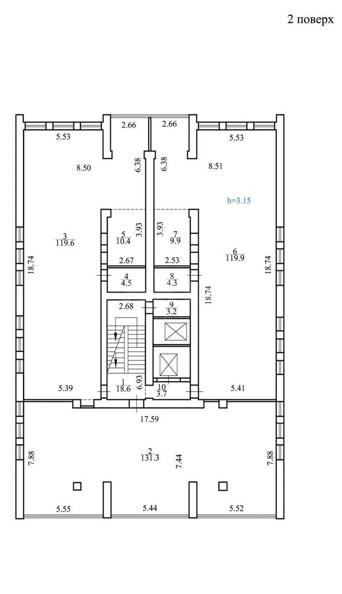
Опис об'єкту

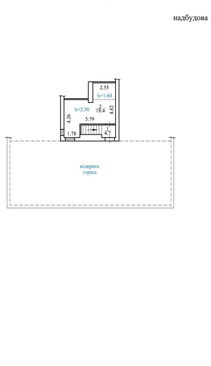
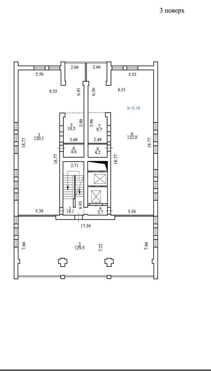
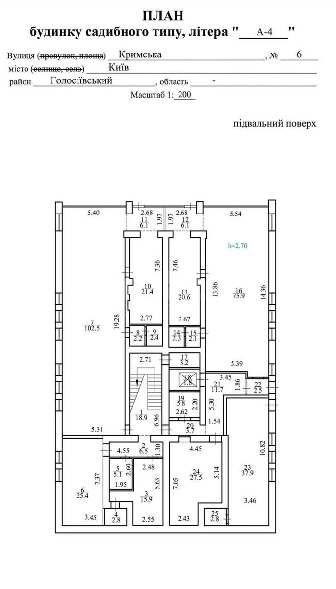
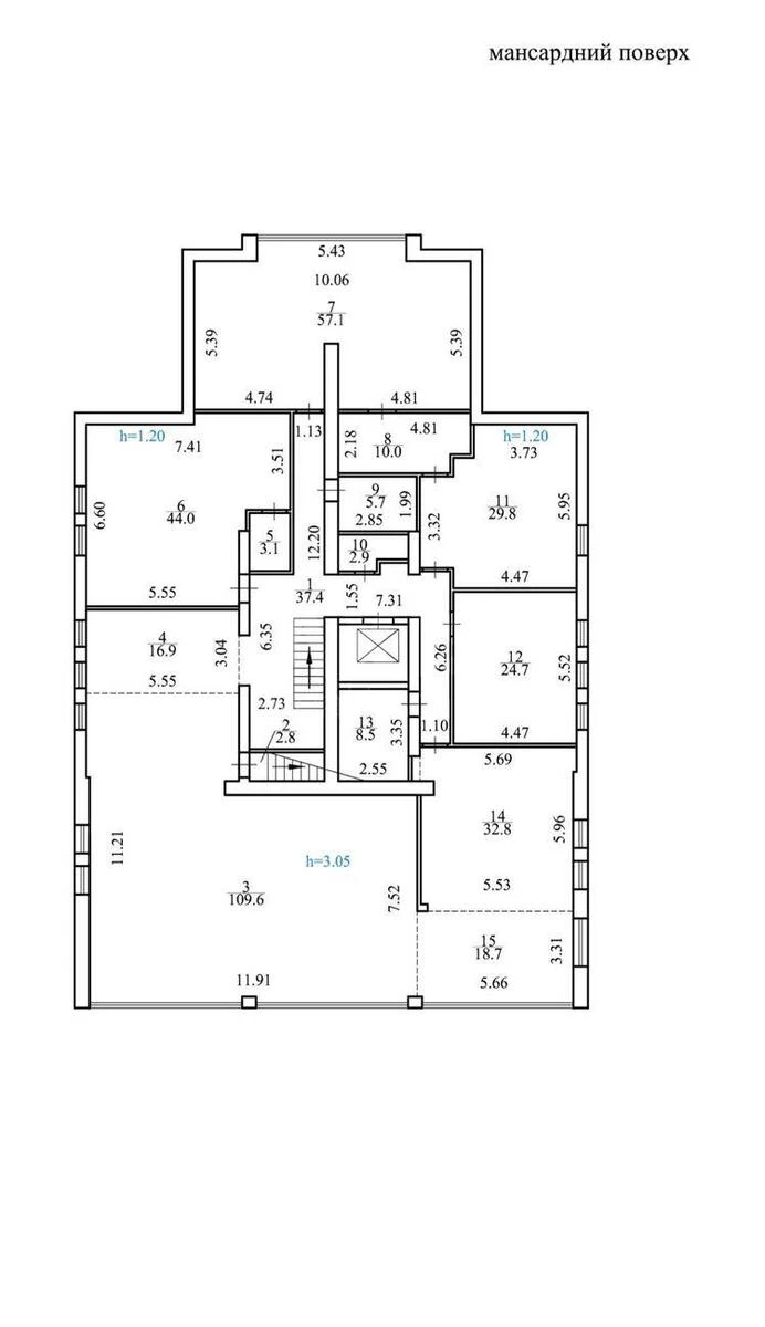
Приміщення вільного призначення. Розташована на 10 сот. Цоколь 413.1 кв.м, 1 поверх 415.3 кв.м, 425.4 кв.м, 422.2 кв.м. мансарда 404 кв.м. Тераса, великі панорамні вікна. Вентильований фасад з керамограніту, енергозберігаючі панорамні алюмінієві вікна з мультифункціональним склом Solar. Будинок введений в експлуатацію, заведені всі комунікації. Електрика 105 кВт ( можливо збільшити). Опалення газове. Інтернет. Міські комунікації. Місце для парковки. Підходить під будь-який вид діяльності - клініку, офіс, отель, квартири клубного типу. Встановлений ліфт.

Схожі пропозиції