Офіс вул. Жилянська 68, 118м2

  • Голосіївський район вул. Жилянська 68
  • Код: RC-223-424
  • Добавлено: 08.04.2026
  • Додати в обране
Тип ринку
Вторинний ринок
Вулиця
вул. Жилянська 68
Назначение
Офісне приміщення
Поверх
16 Поверх
Поверховість
23 поверховий будинок
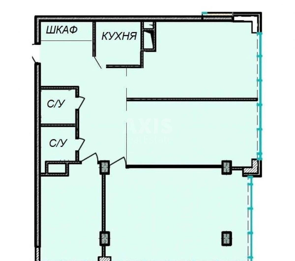
Загальна площа
118 м2
Загальний стан
З ремонтом
Ціна:
87 268 грн.
2 000 USD
Опис об'єкту

Офісне приміщення. Без меблів. Приміщення складається з: зони OPEN SPACE плюс роздільні 3-и кабінети, кухня та 2-а санвузли. Стіни – у світлих тонах, на підлозі – вінілова плитка, сучасне LED освітлення. У кожному кабінеті встановлено кондиціонери, змонтовано СКС розведення. У БЦ презентабельна вхідна група, 6 ліфтів фірми KONE, цілодобова охорона. Новий сучасний офісний комплекс поруч із метро Льва Толстого та метро Олімпійська.

Схожі пропозиції