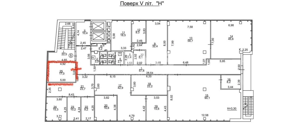
Офіс вул. Товарна 1, 17м2

  • Печерський район вул. Товарна 1
  • Код: RC-206-403
  • Добавлено: 30.04.2026
  • Додати в обране
Тип ринку
Вторинний ринок
Вулиця
вул. Товарна 1
Назначение
Офісне приміщення
Поверх
5 Поверх
Поверховість
7 поверховий будинок
Загальна площа
17 м2
Загальний стан
З ремонтом
Ціна:
30 857 грн.
700 USD
Опис об'єкту

Офісне приміщення. Офіс забезпечений ЦІЛОДОБОВО електроживленням за рахунок як альтернативного так і власного Генератора. При відключеннях ліфт працює постійно в робочий час. На першому поверсі кафе ( комплексні обіди). На поверсі додаткова кімната для миття посуди. Парковка як підземна так і наземна. Поряд, 50 м, Нова Пошта, Новус, Розетка. Метро Звіринецька - 5 хв пішки.

Схожі пропозиції