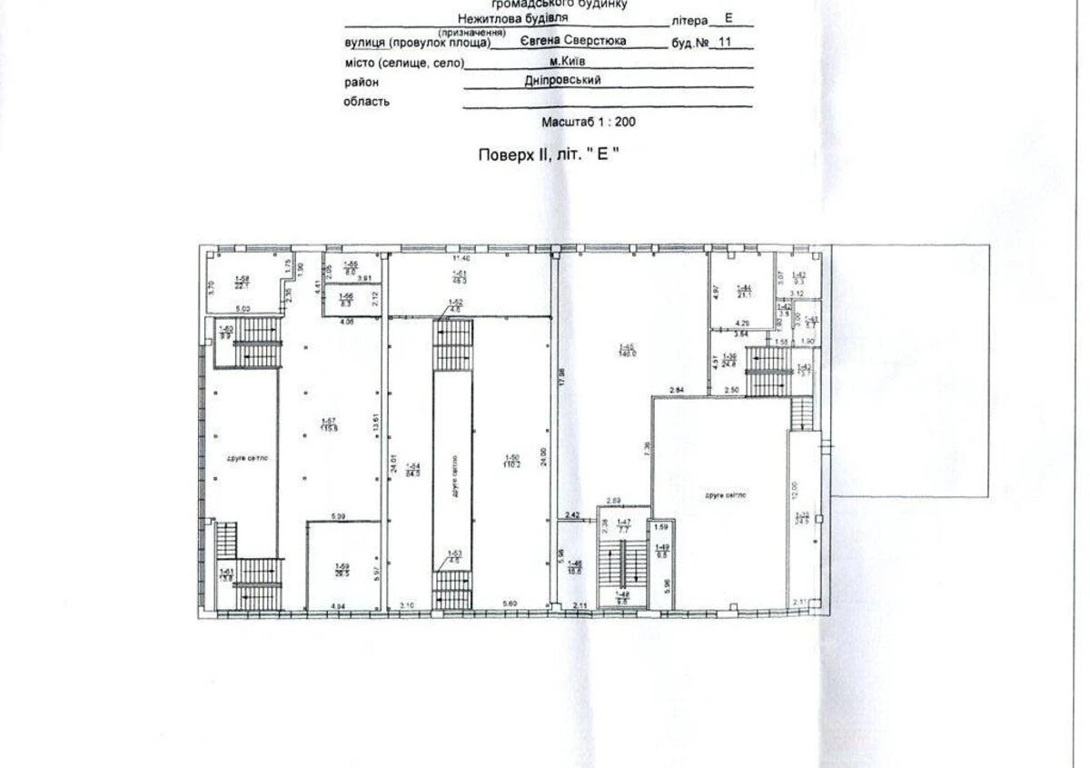
Офіс вул. Сверстюка Євгена 11, 485м2

  • Дніпровський район вул. Сверстюка Євгена 11
  • Код: RC-224-139
  • Добавлено: 25.04.2026
  • Додати в обране
Тип ринку
Вторинний ринок
Вулиця
вул. Сверстюка Євгена 11
Назначение
Офісне приміщення
Поверх
1 Поверх
Поверховість
3 поверховий будинок
Загальна площа
485 м2
Загальний стан
З ремонтом
Ціна:
184 300 грн.
4 194 USD
Опис об'єкту

Офісне приміщення. Світлий офіс з великими панорамними вікнами. БАЛАНС РОБОТИ І ЖИТТЯ: кімнати для переговорів та трененгів, можливість зняти окреме робоче місце, smart-офіси, кавярня, фітнес-студія, релакс, спортзони, салон краси та інше. ЗОВНІШНЯ ІНФРАСТРУКТУРА: Нова Пошта, McDonalds, NOVUS, банки, нотаріуси, кавярні, ресторани, піцерії, магазини, ринок, аптеки.

Схожі пропозиції