Оренда

Усі фото (11)
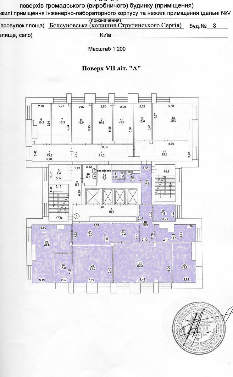
Офіс вул. Струтинського Сергія 8, 222м2
- Додати в обране
-
Подiлитись посиланням
Тип ринку
Вторинний ринок
Вулиця
вул. Струтинського Сергія 8
Назначение
Офісне приміщення
Поверх
8 Поверх
Поверховість
10 поверховий будинок
Загальна площа
222 м2
Загальний стан
З ремонтом
Ціна:
71 296 грн.
1 705 USD
Опис об'єкту
Офісне приміщення. Адміністративна 10-поверхова будівля. Презентабельний фасад і хол, ліфти, пропускна система, офісний ремонт. Підійде під любий вид діяльності. Розвинена інфраструктура. Гарна локація.
Додаткова інформація