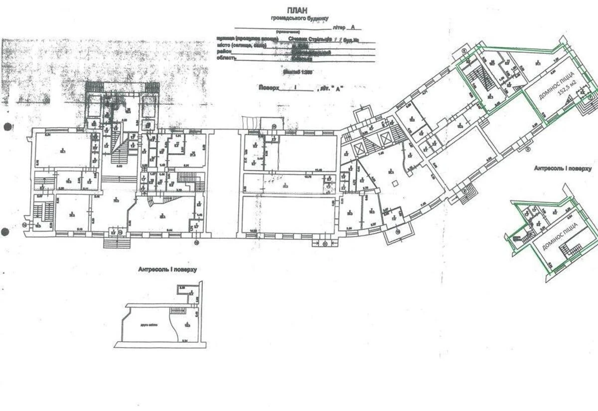
Офіс вул. Січових Стрільців 77, 155м2

  • Шевченківський район вул. Січових Стрільців 77
  • Код: RC-210-184
  • Добавлено: 25.02.2026
  • Додати в обране
Тип ринку
Вторинний ринок
Вулиця
вул. Січових Стрільців 77
Назначение
Офісне приміщення
Поверх
1 Поверх
Поверховість
7 поверховий будинок
Загальна площа
155 м2
Загальний стан
З ремонтом
Ціна:
70 000 грн.
1 616 USD
Опис об'єкту

Офісне приміщення. Фасаднмй вхід. Потужність електроенергії 100 кВт. Охоронна та пожежна сигналізація. Опалення. Кондиціонери. Приміщення має 2 рівні, 2 с/у, душова кімната, кухня, (Обладнана окрема морозильна камера)підсобні кімнати. В приміщенні є 3 входи (фасадний, запасний з фасаду , а також вхід з двору обладнаний рампою для подачі продуктів на кухню).

Схожі пропозиції