Офіс вул. Шовковична 42/44, 146м2

  • Печерський район вул. Шовковична 42/44
  • Код: RC-223-437
  • Добавлено: 08.04.2026
  • Додати в обране
Тип ринку
Вторинний ринок
Вулиця
вул. Шовковична 42/44
Назначение
Офісне приміщення
Поверх
12 Поверх
Поверховість
15 поверховий будинок
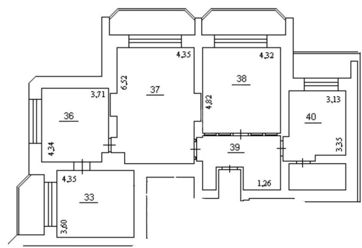
Загальна площа
146 м2
Загальний стан
З ремонтом
Ціна:
57 335 грн.
1 314 USD
Опис об'єкту

Офісне приміщення. Повна автономність (дизельний генератор). Місця для паркування авто. Планування: п'ять кабінетів, серверна, можливість встановлення мінікухні. Оренда сучасного офісу з панорамним краєвидом у самому ЦЕНТРІ СТОЛИЦІ.

Схожі пропозиції