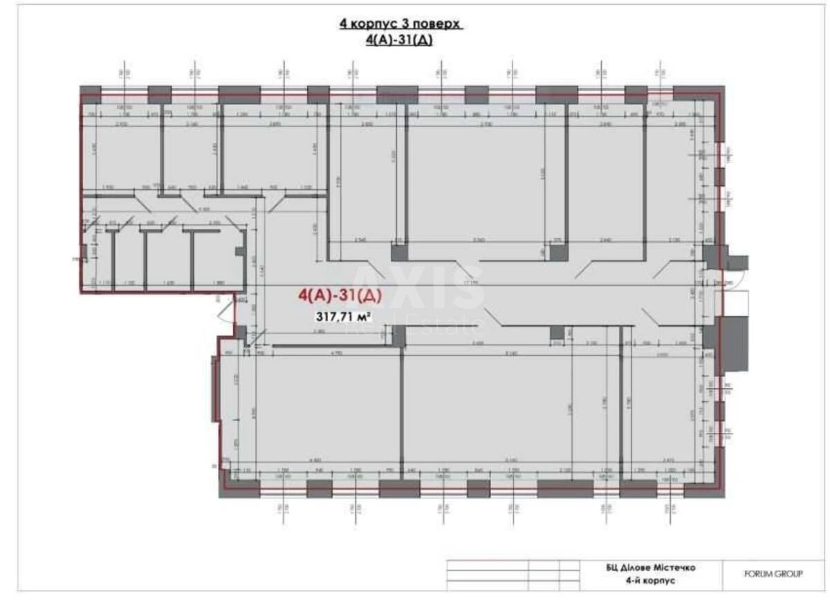
Офіс вул. Пимоненка Миколи 13, 317м2

  • Шевченківський район вул. Пимоненка Миколи 13
  • Код: RC-224-175
  • Добавлено: 27.04.2026
  • Додати в обране
Тип ринку
Вторинний ринок
Вулиця
вул. Пимоненка Миколи 13
Назначение
Офісне приміщення
Поверх
3 Поверх
Поверховість
4 поверховий будинок
Загальна площа
317 м2
Загальний стан
З ремонтом
Ціна:
276 710 грн.
6 285 USD
Опис об'єкту

Офісне приміщення. Безперебійна електрика (генератор). Автономне водопостачання та каналізація. Мультизональна система кондиціонування та вентиляції. Безперебійний інтернет (оптичне волокно). Відеоспостереження. Сучасні швидкісні ліфти KONE. Доступ до приміщення 24/7.

Схожі пропозиції