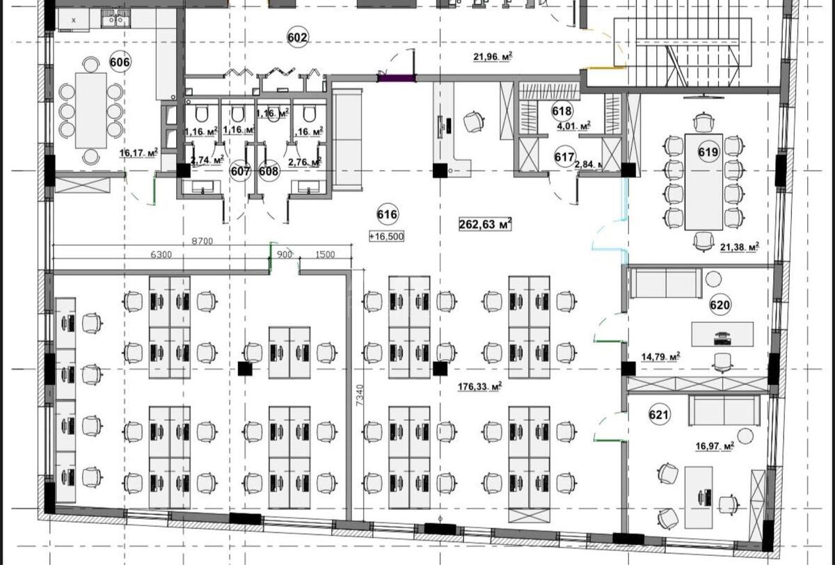
Офіс вул. Красилівська 9, 309м2

  • Голосіївський район вул. Красилівська 9
  • Код: RC-217-570
  • Добавлено: 06.11.2025
  • Додати в обране
Тип ринку
Вторинний ринок
Вулиця
вул. Красилівська 9
Назначение
Офісне приміщення
Поверх
7 Поверх
Поверховість
10 поверховий будинок
Загальна площа
309 м2
Загальний стан
З ремонтом
Ціна:
242 954 грн.
5 777 USD
  • AXIS Real Estate
  • AXIS Real Estate
  • AXIS Real Estate
Опис об'єкту

Офісне приміщення. Дві трансформаторних Підстанції + генератор + сонячні батареї. Панорамні вікна. Інтернет від декількох провайдерів. Автономна система опалення від компанії BUDERUS, приточно-витяжна з інтегрованою багаторівневою системою фільтрації, котра очищує повітря від алергенів. Лобі з рестораном та рецепцією. Високошвидкісних ліфти KONE оснащені системою доступу за розпізнаванням обличчя або карткою.

Додаткова інформація

Схожі пропозиції