Офіс вул. Глибочицька 27, 132м2

  • Шевченківський район вул. Глибочицька 27
  • Код: RC-218-066
  • Добавлено: 25.02.2026
  • Додати в обране
Тип ринку
Вторинний ринок
Вулиця
вул. Глибочицька 27
Назначение
Офісне приміщення
Поверх
4 Поверх
Поверховість
4 поверховий будинок
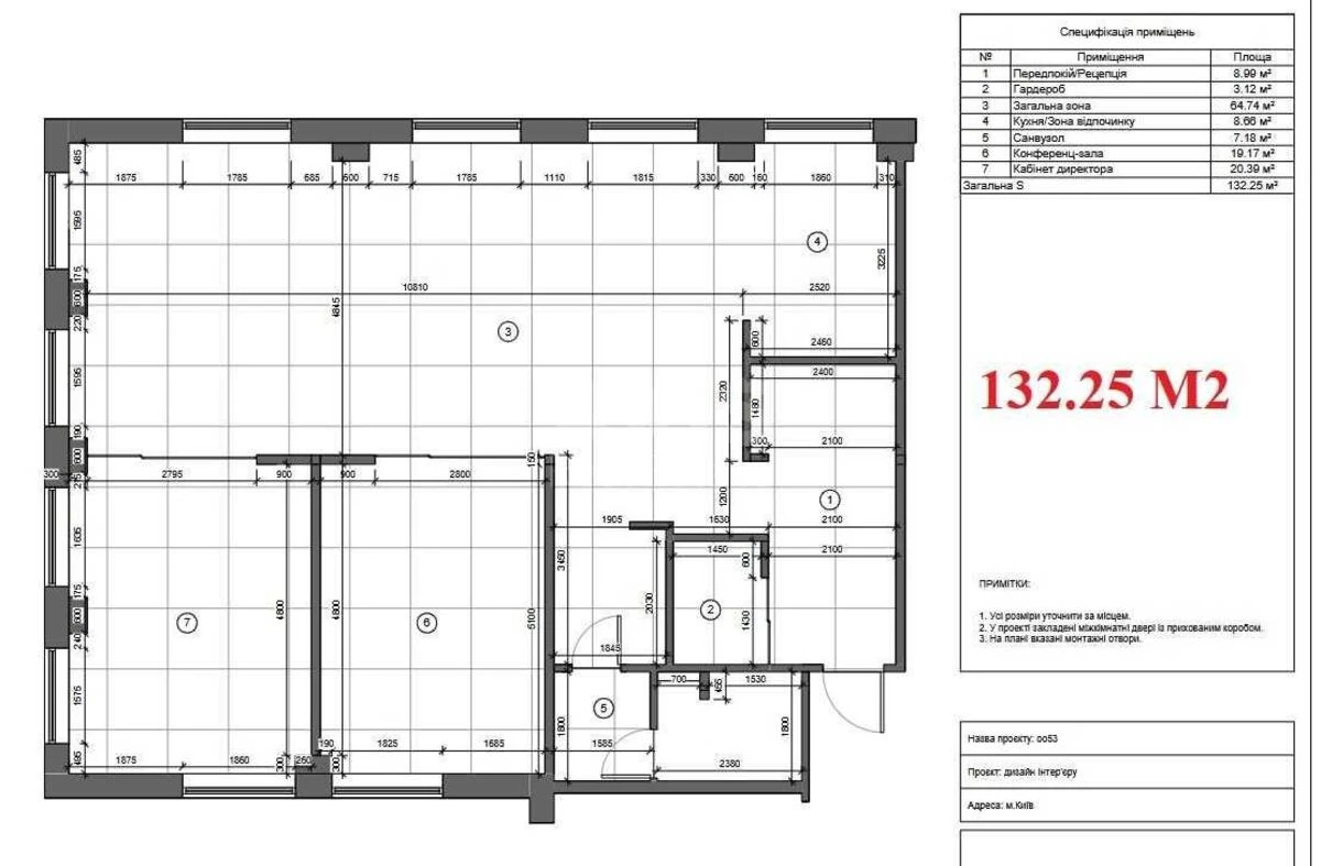
Загальна площа
132 м2
Загальний стан
З ремонтом
Ціна:
100 000 грн.
2 308 USD
Опис об'єкту

Офісне приміщення. Четвертий поверх, ліфт. Площа - 132 м2. Два кабінети, опенспейс, ресепшен, серверна, гардероб, кухня, санвузол. Всі комунікації, охорона, зупинка транспорту, метро 'Лук'янівська - 10 хвилин. Розвинена інфраструктура.

Схожі пропозиції