Офіс вул. Гайдара 58/10, 944м2

  • Голосіївський район вул. Гайдара 58/10
  • Код: RC-213-568
  • Добавлено: 13.08.2025
  • Додати в обране
Тип ринку
Вторинний ринок
Вулиця
вул. Гайдара 58/10
Назначение
Офісне приміщення
Поверх
5 Поверх
Поверховість
6 поверховий будинок
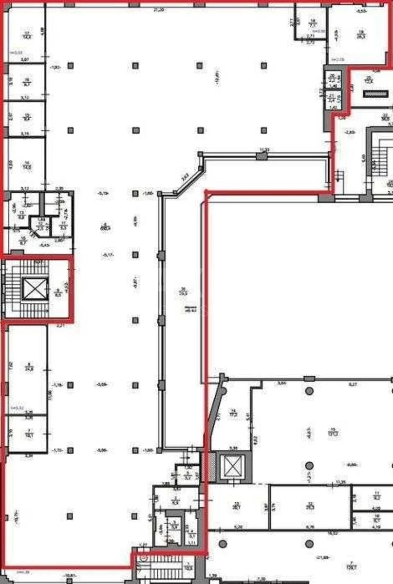
Загальна площа
944 м2
Загальний стан
З ремонтом
Ціна:
595 590 грн.
14 160 USD
  • AXIS Real Estate
  • AXIS Real Estate
  • AXIS Real Estate
Опис об'єкту

Офісне приміщення. Планування - комбінована система : 2 великих openspace, 1 велика переговорна кімната, 5 кабінетів, кухня, 4 с/в та душова, 2 входи, серверна. Офіс здається з сучасними офісними меблями. Індивідуальні системи кондиціювання та вентиляції, центральне опалення, індивідуальна система пожежної сигналізації, інтернет – оптоволоконний кабель, власна серверна, система контролю доступу (ACS), внутрішня система відеоспостереження.

Додаткова інформація

Схожі пропозиції