Офіс вул. Гайдара 58/10, 362м2

  • Голосіївський район вул. Гайдара 58/10
  • Код: RC-219-769
  • Добавлено: 30.12.2025
  • Додати в обране
Тип ринку
Вторинний ринок
Вулиця
вул. Гайдара 58/10
Назначение
Офісне приміщення
Поверх
3 Поверх
Поверховість
5 поверховий будинок
Загальна площа
362 м2
Загальний стан
З ремонтом
Ціна:
356 510 грн.
8 442 USD
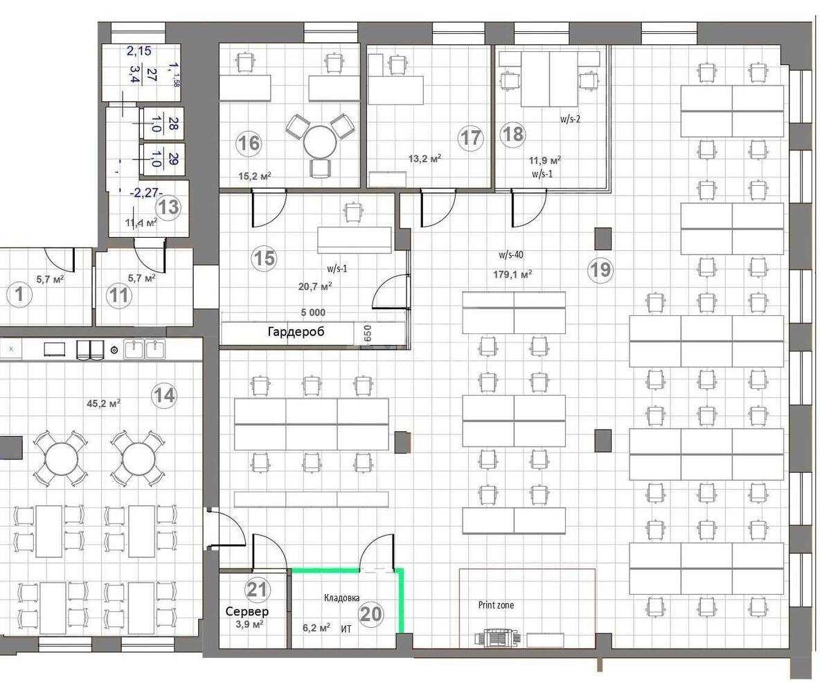
Опис об'єкту

Офісне приміщення. На території бізнес парку — трирівневий критий паркінг на 450 місць, 4 точки харчування, внутрішній двір із зоною відпочинку, 2 тераси, салон краси, арт-студія, конференц-зал, а також паркування з електрозарядками для самокатів та велосипедів. Інженерія будівлі: забезпечено тривала безперебійна робота будівлі у разі відсутності міського електропостачання, автономне опалення, система кондиціювання чилер-фанкойл, вентиляція з передпідготовкою повітря — усе для стабільної роботи команди.

Схожі пропозиції