Офіс вул. Філатова Академіка 5, 3258м2

  • Печерський район вул. Філатова Академіка 5
  • Код: SC-219-554
  • Добавлено: 28.01.2026
  • Додати в обране
Тип ринку
Вторинний ринок
Вулиця
вул. Філатова Академіка 5
Назначение
Офісне приміщення
Поверх
1 Поверх
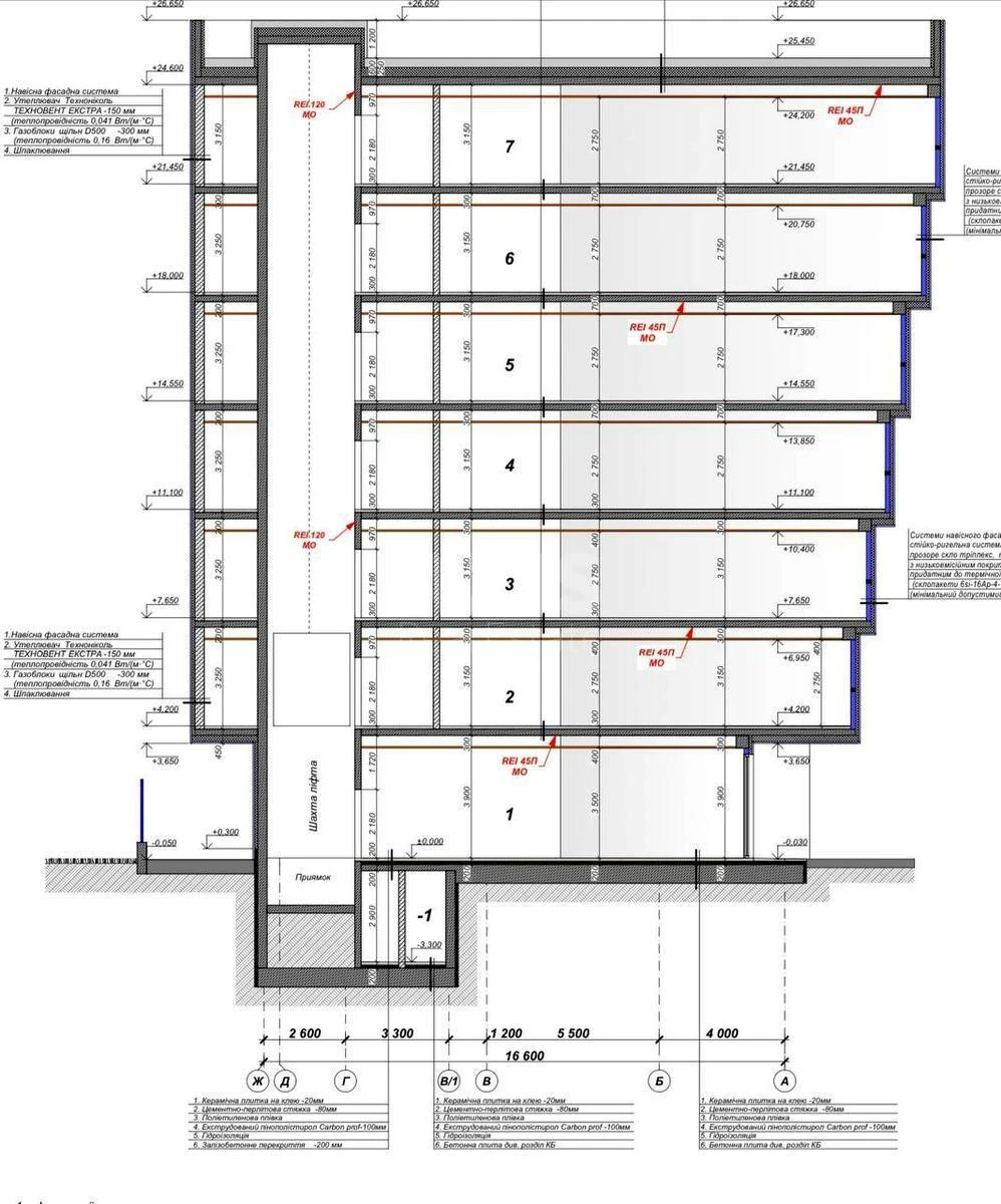
Поверховість
7 поверховий будинок
Загальна площа
3258 м2
Загальний стан
Без ремонту
Ціна:
559 999 648 грн.
13 032 000 USD
Опис об'єкту

Приміщення вільного призначення. 7 поверхів+ тераса на криші. + укриття для 100+ людей. Зовнішній паркінг. 15 машиномісць, можливо збільшення до 40 місць. Ліфтове обладнання: Møllehøj – Денмарк, Данія кількість – 2 шт габаритні розміри кабін: 1 100 х 2 100 (ШхГ) мм ширина дверей 900 мм.

Схожі пропозиції