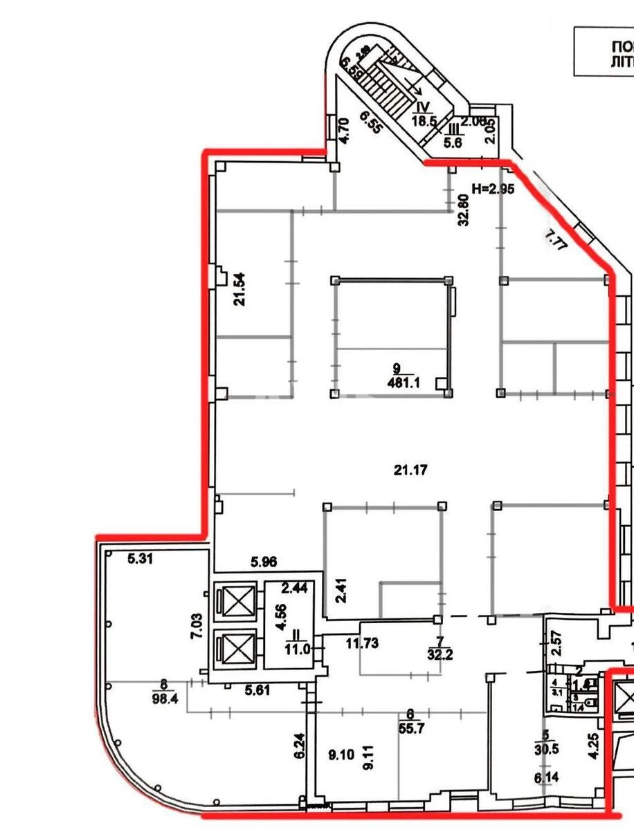
Офіс вул. Дегтярівська 27Т, 781м2

  • Шевченківський район вул. Дегтярівська 27Т
  • Код: RC-208-731
  • Добавлено: 25.02.2026
  • Додати в обране
Тип ринку
Вторинний ринок
Вулиця
вул. Дегтярівська 27Т
Назначение
Офісне приміщення
Поверх
4 Поверх
Поверховість
10 поверховий будинок
Загальна площа
781 м2
Загальний стан
З ремонтом
Ціна:
372 290 грн.
8 596 USD
Опис об'єкту

Офісне приміщення. Наявність паркомісць: 20 (3000 грн. за 1 календарний місяць користування). Можливість надання орендних канікул: не більше -30 календарних днів під ремонт. Підійде під любий вид діяльності. Розвинена інфраструктура.

Схожі пропозиції