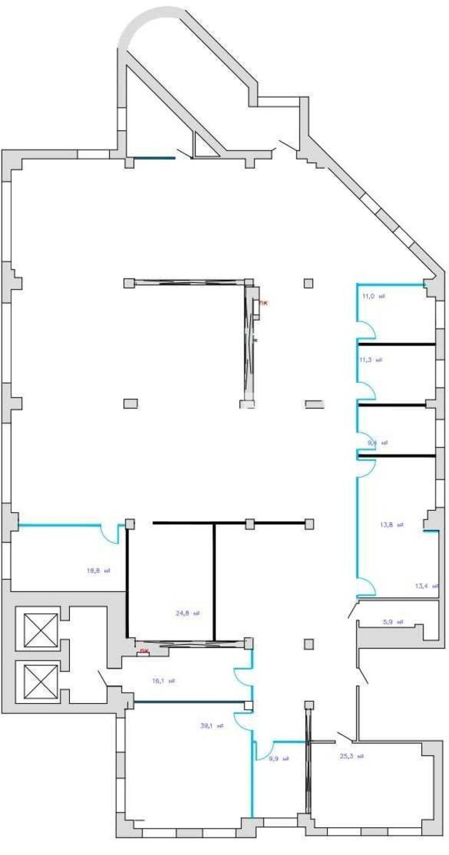
Офіс вул. Дегтярівська 27Т, 666м2

  • Шевченківський район вул. Дегтярівська 27Т
  • Код: RC-201-463
  • Добавлено: 15.11.2024
  • Додати в обране
Тип ринку
Вторинний ринок
Вулиця
вул. Дегтярівська 27Т
Назначение
Офісне приміщення
Поверх
5 Поверх
Поверховість
10 поверховий будинок
Загальна площа
666 м2
Загальний стан
З ремонтом
Ціна:
308 243 грн.
7 326 USD
Опис об'єкту

Офісне приміщення. Наявність паркомісць: 20 (3000 грн. за 1 календарний місяць користування). Можливість надання орендних канікул: не більше -30 календарних днів під ремонт. Є все необхідне. Гарна транспортна розв'язка. Зручна локація. Розвинена інфраструктура.

Схожі пропозиції