Офіс вул. Данила Щербаківського 45А, 89м2

  • Шевченківський район вул. Данила Щербаківського 45А
  • Код: RC-218-039
  • Добавлено: 19.11.2025
  • Додати в обране
Тип ринку
Вторинний ринок
Вулиця
вул. Данила Щербаківського 45А
Назначение
Офісне приміщення
Поверх
4 Поверх
Поверховість
4 поверховий будинок
Загальна площа
89 м2
Загальний стан
З ремонтом
Ціна:
42 984 грн.
1 021 USD
  • AXIS Real Estate
  • AXIS Real Estate
  • AXIS Real Estate
Опис об'єкту

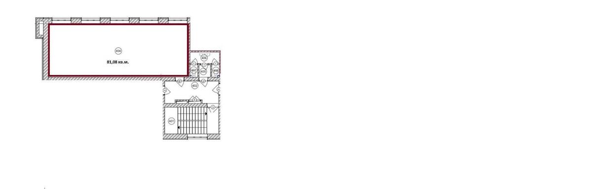
Офісне приміщення. Офіс розташований на 4му поверсі. Площа: 81,08 кв.м. + коефіцієнт 10%. Офіс з ремонтом без меблів. Оснащення: приточно-витяжна вентиляція, централізоване опалення, оптоволоконні лінії зв'язку, протипожежна система, цілодобова фізична охорона, відеоспостереження, паркінг - 50 місць, генератор.

Додаткова інформація

Схожі пропозиції