Офіс вул. Бульварно-Кудрявська 17, 208м2

  • Шевченківський район вул. Бульварно-Кудрявська 17
  • Код: RC-221-268
  • Добавлено: 16.02.2026
  • Додати в обране
Тип ринку
Вторинний ринок
Вулиця
вул. Бульварно-Кудрявська 17
Назначение
Офісне приміщення
Поверх
2 Поверх
Поверховість
23 поверховий будинок
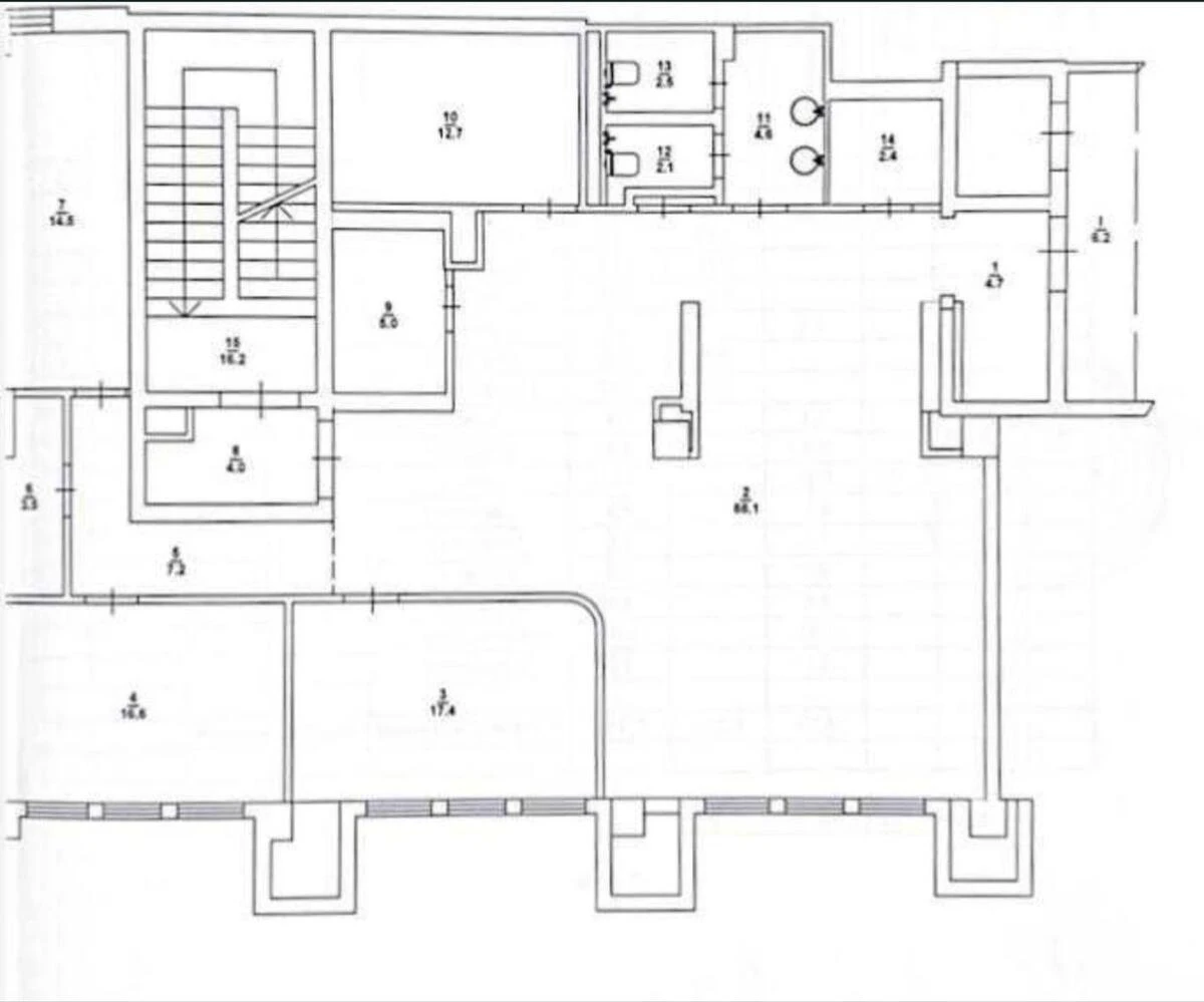
Загальна площа
208 м2
Загальний стан
З ремонтом
Ціна:
344 869 грн.
8 000 USD
Опис об'єкту

ЖК «Ярославів Град», офісне приміщення. Ідеальний офіс для компанії, яка цінує комфорт, статус і локацію. Дизайнерський ремонт. Функціональне планування: простора рецепція, зона очікування / відпочинку, переговорна кімната, 2 окремі кабінети, повноцінна кухня, гардеробна, 2 санвузли. Представницький офіс у сучасному житловому комплексі бізнес-класу. Підійде для IT-компанії, юридичної фірми, медичного або консалтингового бізнесу, тощо.

Схожі пропозиції