Оренда

Усі фото (9)
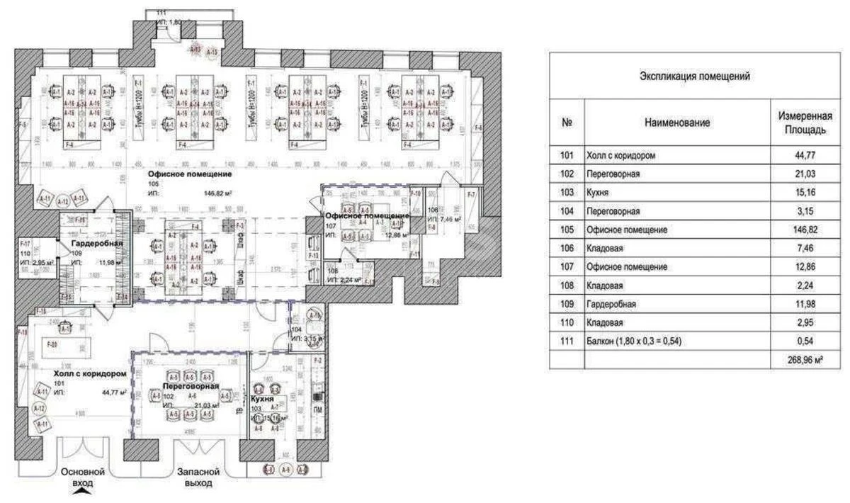
Офіс вул. Басейна 2А, 270м2
- Додати в обране
-
Подiлитись посиланням
Тип ринку
Вторинний ринок
Вулиця
вул. Басейна 2А
Назначение
Офісне приміщення
Поверх
3 Поверх
Поверховість
9 поверховий будинок
Загальна площа
270 м2
Загальний стан
З ремонтом
Ціна:
224 576 грн.
5 380 USD
Опис об'єкту
Офісне приміщення. Про офіс: 270м2, має відмінне розташування на 3-му поверсі БЦ в безпосередній близькості до центральної вхідної групи, поруч ліфти/санвузли/паркінг - підключений до всіх необхідних комунікацій. Зроблений якісний та стильний ремонт - повністю мебльовано 22 робочі місця (стіл, крісло, шафка) в опен-спейсі та 1 кабінет керівника + організована офісна інфраструктура: ресепшн, переговорна кімната, скайп-рум, кухня, гардероб, серверна - офіс має безпосередній доступ (не виходячи з 3 паркомісць.
Додаткова інформація