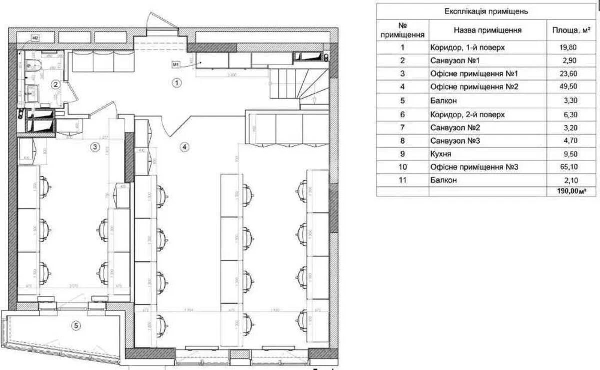
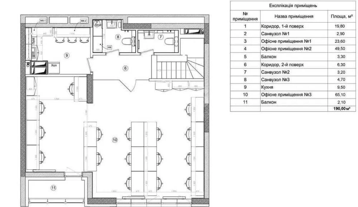
Офіс вул. Антоновича 109, 190м2

  • Голосіївський район вул. Антоновича 109
  • Код: RC-223-798
  • Добавлено: 18.04.2026
  • Додати в обране
Тип ринку
Вторинний ринок
Вулиця
вул. Антоновича 109
Назначение
Офісне приміщення
Поверх
23 Поверх
Поверховість
25 поверховий будинок
Загальна площа
190 м2
Загальний стан
З ремонтом
Ціна:
143 887 грн.
3 299 USD
Опис об'єкту

ЖК Володимирський, офісне приміщення. В офіс заведено оптоволоконний інтернет, резервне живлення. Зроблено розведення під інтернет, відеоспостереження.Встановлено домофон. Цілодобова охорона ЖК. На території ЖК є підземний паркінг. Поруч метро Палац Україна, Олімпійська, Либідська.

Схожі пропозиції