Офіс узв. Кловський 7, 270м2

  • Печерський район узв. Кловський 7
  • Код: SC-221-216
  • Добавлено: 30.03.2026
  • Додати в обране
Тип ринку
Вторинний ринок
Вулиця
узв. Кловський 7
Назначение
Офісне приміщення
Поверх
32 Поверх
Поверховість
46 поверховий будинок
Загальна площа
270 м2
Загальний стан
З ремонтом
Ціна:
38 184 298 грн.
870 000 USD
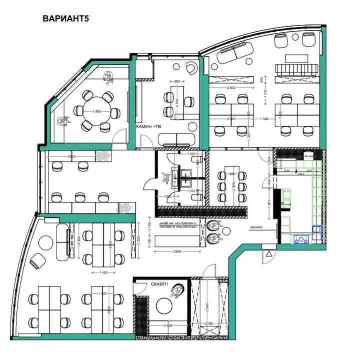
Опис об'єкту

Офісне приміщення. 37 робочих місць. Рецепція. Кабінет керівника. Переговорна кімната. Skype room. Велика кухня зі столовою зоною. 2 санвузли. Гардеробна кімната. Встановлений генератор. Панорамний вид на Київ.

Схожі пропозиції