Офіс пр-т Оболонський 26, 120м2

  • Оболонський район пр-т Оболонський 26
  • Код: RC-217-500
  • Добавлено: 06.11.2025
  • Додати в обране
Тип ринку
Вторинний ринок
Вулиця
пр-т Оболонський 26
Назначение
Офісне приміщення
Поверх
2 Поверх
Поверховість
26 поверховий будинок
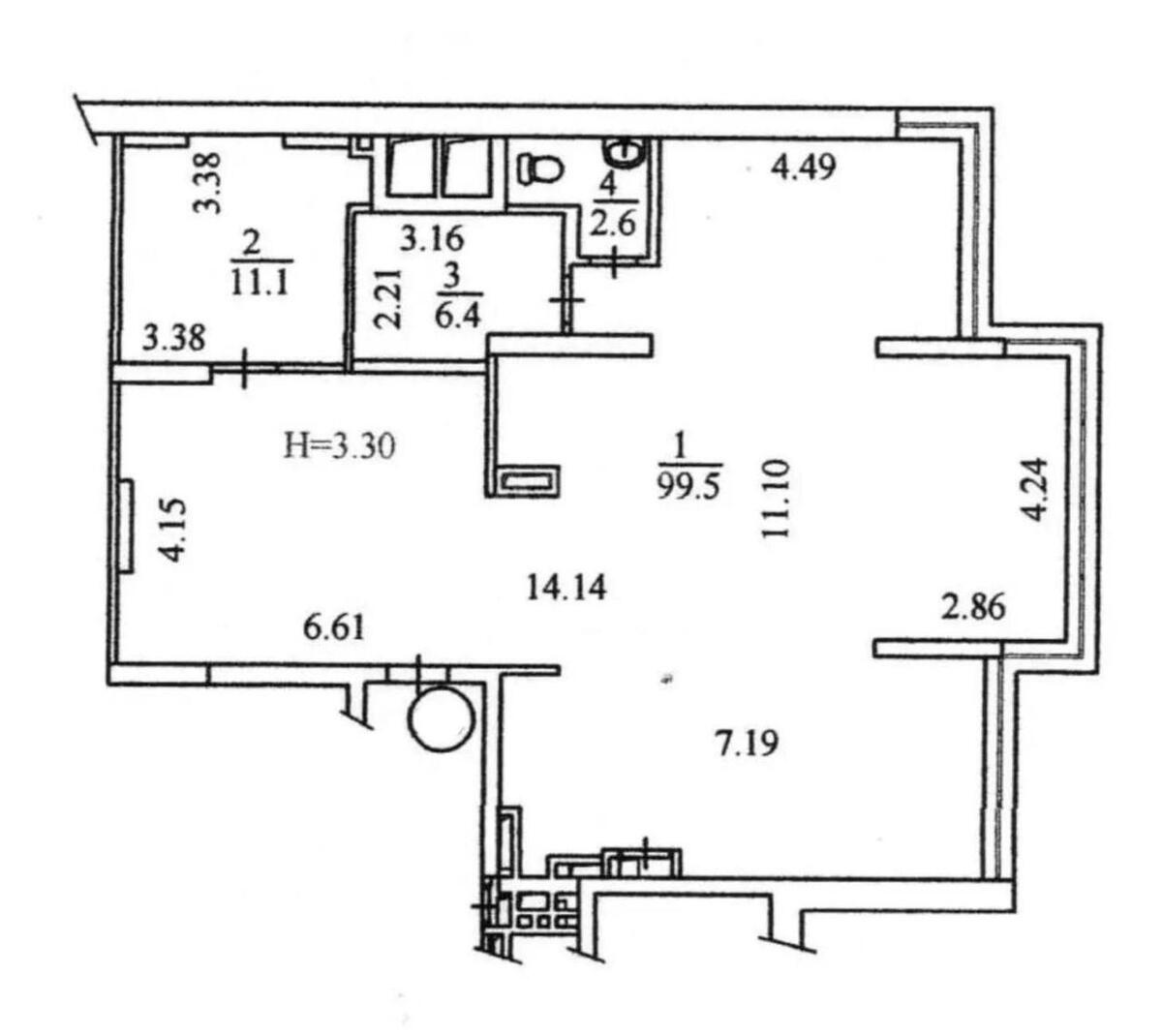
Загальна площа
120 м2
Загальний стан
З ремонтом
Ціна:
160 667 грн.
3 800 USD
  • AXIS Real Estate
  • AXIS Real Estate
  • AXIS Real Estate
Опис об'єкту

ЖК Obolon Residences, офісне приміщення. Окремий вхід з центрального фасаду безпосередньо зі сторони Оболонського проспекту. Планування: простора вхідна група із зоною очікування, переговорна кімната, опенспейс із 4 зонованими робочими місцями, окрема кухня, санвузол. Ключові переваги: можливість зонування простору та облаштування окремих кабінетів, повне меблювання (відповідає фото), ідеальний варіант для юридичних, консалтингових та ІТ-компаній, а також нотаріальних офісів, окремий вхід з фасаду, система кондиціювання та охоронна система.

Додаткова інформація

Схожі пропозиції