Оренда

Усі фото (17)
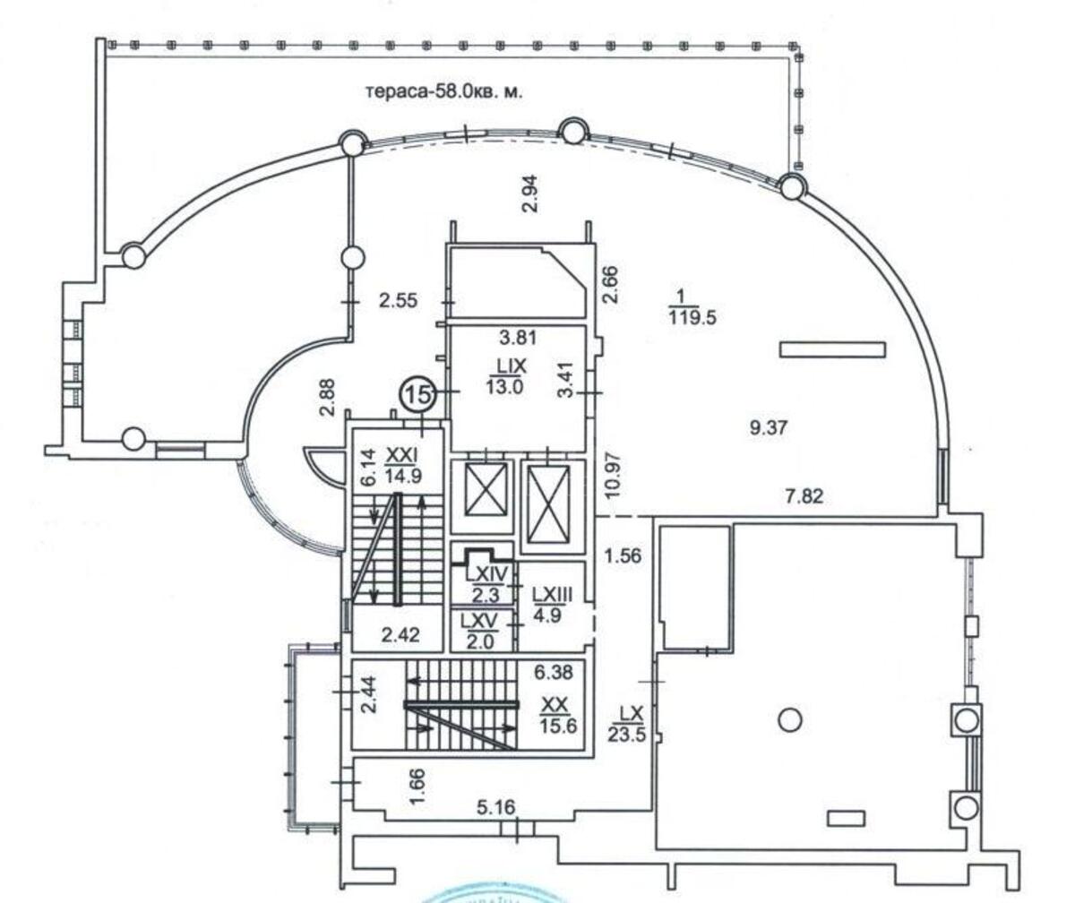
Офіс бул. Шевченка Тараса 33Б, 137м2
- Додати в обране
-
Подiлитись посиланням
Тип ринку
Вторинний ринок
Вулиця
бул. Шевченка Тараса 33Б
Назначение
Офісне приміщення
Поверх
8 Поверх
Поверховість
16 поверховий будинок
Загальна площа
137 м2
Загальний стан
З ремонтом
Ціна:
55 000 грн.
1 320 USD
Опис об'єкту
Офісне приміщення. 4 кабінети, кухня, 2 санвузли. Власна тераса. Припливна витяжна система вентиляції та кондиціювання. Клімат-контроль. Пожежна сигналізація. Інтернет. Частково мебльований. Офіс єдиний на поверсі без сусідів. Цілодобова охорона.
Додаткова інформація