Продаж
 
              
                 
                Усі фото (9)
              
              
          Дiм вул. Центральна, 140м2, місто Київ
- Додати в обране
- 
              Подiлитись посиланням
Тип ринку
                Вторинний ринок
              Вид
                Однокімнатна
              Вулиця
                
                  вул. Центральна 41
              Соток
                6
              Кількість кімнат
                4
              Поверховість
                2 поверховий будинок
                
              Загальний стан
                Без ремонту
              Ціна:
              7 141 032 грн.
              170 000 USD
            Опис об'єкту
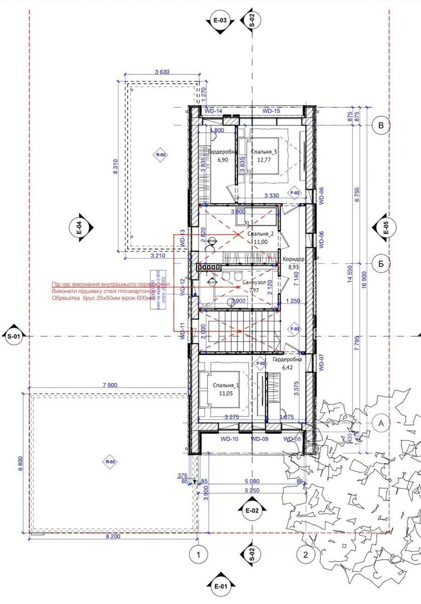
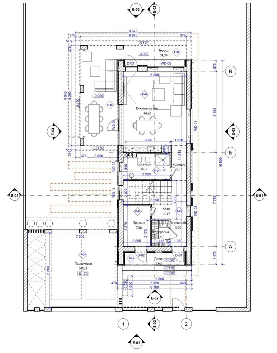
          4 кімнатна квартира. Гардеробна кімната (при вході) 3,4 м2. Технічне приміщення з окремим входом 7,86 м2. Санвузол 8,03 м. Кухня-студія з виходом на терасу та задній двір - 35 м2. Висота стель 3 м. 2 поверх. 1 спальня (або кімната вільного призначення ) 17,57 м2. 2 спальня 11 м2. 3 спальня 12,77 м2+ гардеробна 6,90 м2. Санвузол 7,97 м. Висота стель 3,5 м. Парковка на 2 авто Відкатні ворота. Скважина 64 м. Заведено світло 15 кВт (електролічильник день/ніч). Фундамент стрічковий (плита підлоги по ґрунту). Стіни газоблок Стоунлайт 375 мм, утеплені мінватою 100 мм. Дах клік-фальц.
Додаткова інформація
           
                   
                   
                   
                   
                   
                   
                   
                   
                           
                           
                          