Продаж

Усі фото (13)
5к квартира вул. Драгомирова Михайла 17Б
- Додати в обране
-
Подiлитись посиланням
Тип ринку
Первинний ринок
Вулиця
вул. Драгомирова Михайла 17Б
Кількість кімнат
5
Поверх
0 Поверх
Поверховість
30 поверховий будинок
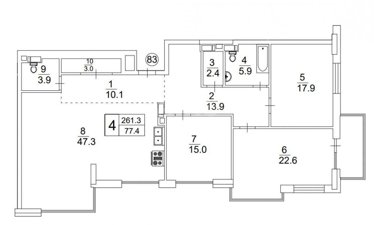
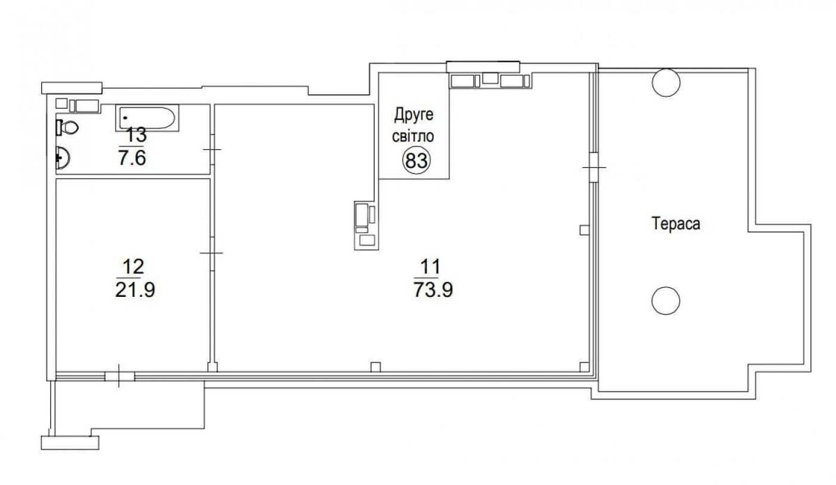
Загальна площа
261 м2
Загальний стан
Без ремонту
Ціна:
32 643 304 грн.
783 900 USD
Опис об'єкту
ЖК Новопечерські Липки, 5 кімнатна квартира. Дизайн проект, під планування, квартира без ремонту. Вид на Дніпро. На поверсі дві квартири. Продаж паркінгу за окрему платню. Закрита територія комплексу, елітний дитячий садок, школа, басейн, корт для теніста, спортзал, футбольне поле, зелена зона для піших прогулянок.
Додаткова інформація