Продаж

Усі фото (10)
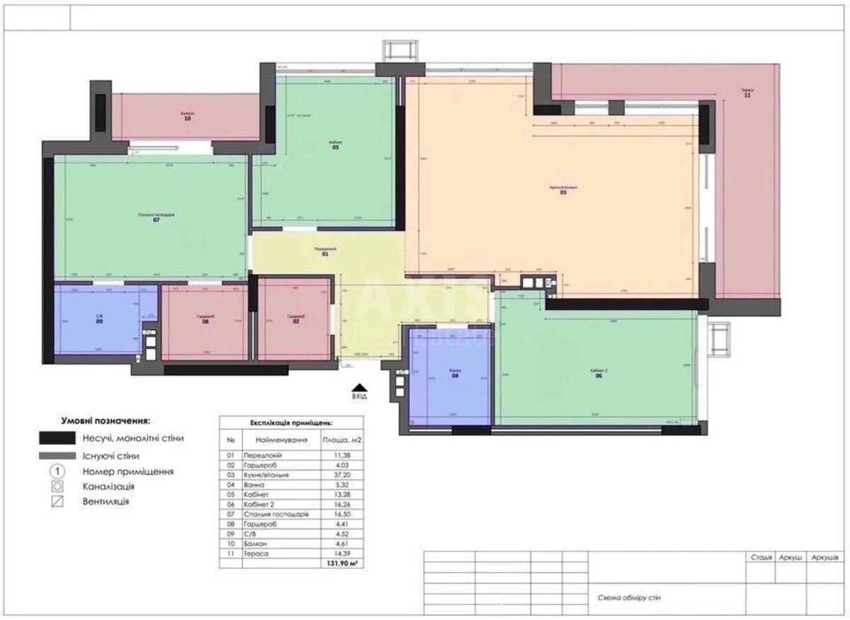
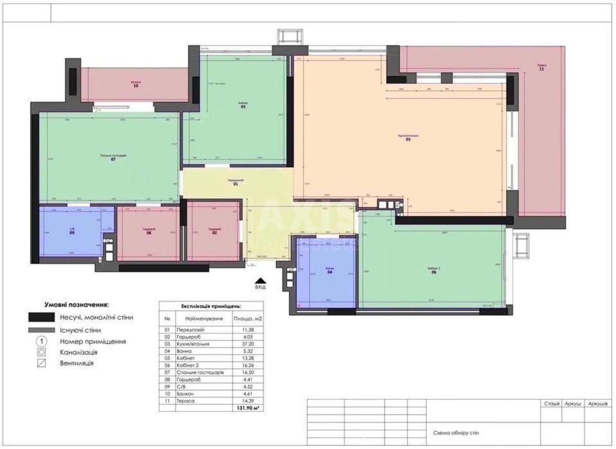
4к квартира вул. Салютна 2Б
- Додати в обране
-
Подiлитись посиланням
Тип ринку
Первинний ринок
Вулиця
вул. Салютна 2Б
Кількість кімнат
4
Поверх
14 Поверх
Поверховість
14 поверховий будинок
Загальна площа
132 м2
Загальний стан
Без ремонту
Ціна:
13 831 815 грн.
334 900 USD
Опис об'єкту
ЖК Файна Таун, 4 кімнатна квартира. В зданому будинку, де велика кухня-вітальня з виходом на балкон з видом на місто, три окремі спальні кімнати (в мастер спальні також вихід на окремий балкон), 2 санвузли, 2 гардеробні кімнати. Це комплекс із своєю власною екосистемою, закритий по периметру та під охороною 24/7. На території облаштовані зони для відпочинку, басейн, спорт майданчик, багато дитячих майданчиків. Поруч парк, ринок, супермаркет, зручне транспортне сполучення до ст.м. Нивки.
Додаткова інформація