4к квартира вул. Кудрі Івана 3А

  • Печерський район вул. Кудрі Івана 3А
  • Код: SF-3-277-032
  • Добавлено: 29.03.2026
  • Додати в обране
Тип ринку
Вторинний ринок
Вулиця
вул. Кудрі Івана 3А
Кількість кімнат
4
Поверх
5 Поверх
Поверховість
24 поверховий будинок
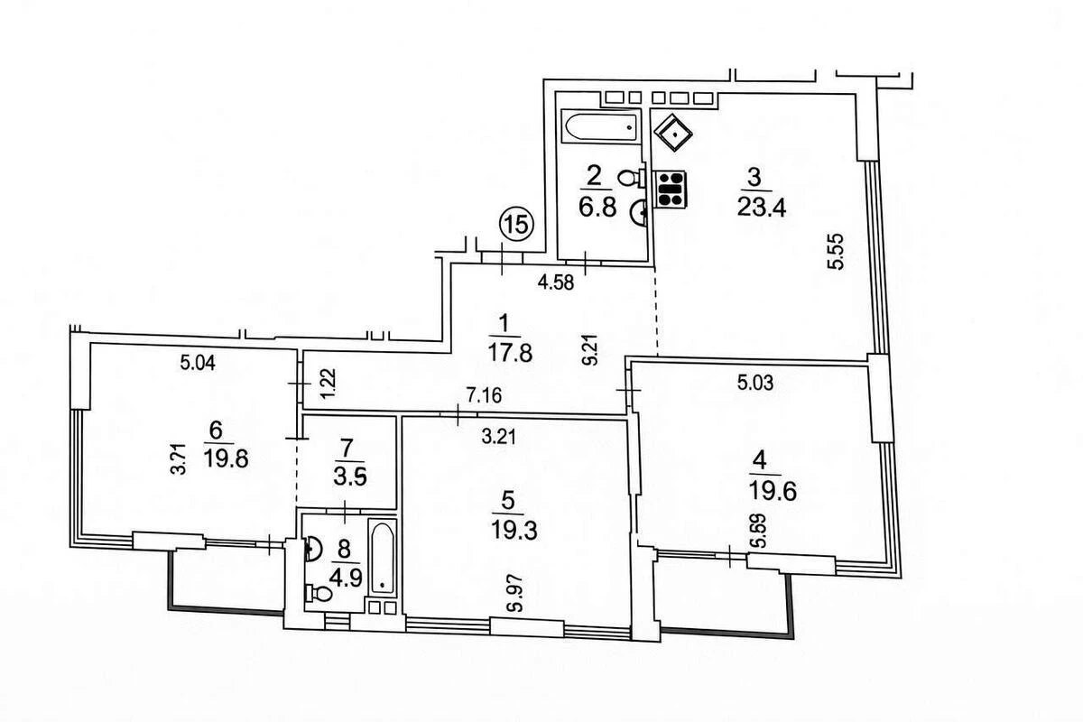
Загальна площа
123 м2
Загальний стан
Без ремонту
Ціна:
15 800 187 грн.
360 000 USD
Опис об'єкту

ЖК Французький квартал 2, 4 кімнатна квартира. Простора квартира з трьома окремими спальнями, одна з яких — мастер-спальня з власним санвузлом, гардеробом та балконом. Велика кухня-гостинна площею 30 м², два окремі санвузли, дві лоджії. Є можливість перепланування та додавання ще однієї кімнати. Висота стелі 3 м, стан — після забудовника. Будинок побудований за монолітно-каркасною технологією з утепленням мінеральною ватою, що забезпечує тепло в квартирі. Встановлене резервне живлення (інвертори) — при відключеннях світла працюють ліфти, освітлення, вода, опалення та контроль доступу. Розвинена інфраструктура поруч: ТЦ Ocean Plaza, Нова пошта, кафе, ресторани, спортивні клуби. До метро Либідська — 2 хвилини пішки. Поруч ЖК «Французький квартал», Бульвар фонтанів, Taryan Tower, Печерськ.

Схожі пропозиції