Продаж

Усі фото (14)
3к квартира вул. Тверська 4
- Додати в обране
-
Подiлитись посиланням
Тип ринку
Вторинний ринок
Вулиця
вул. Тверська 4
Кількість кімнат
3
Поверх
13 Поверх
Поверховість
17 поверховий будинок
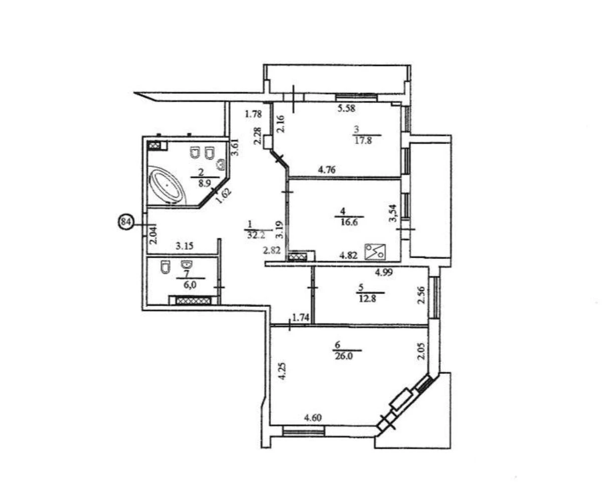
Загальна площа
130 м2
Загальний стан
З ремонтом
Ціна:
9 819 784 грн.
235 000 USD
Опис об'єкту
3 кімнатна квартира. В квартирі: передпокій з великою шафою, гардероб на кімната , спальна кімната ( з виходом на балкон), простора кухня ( укомплектована всіма меблями), кабінет ( або дитяча), вітальня , 2 повноцінні с/у ( душ і ванна ). Є можливість покупки парко місця. Кондиціонування кожної кімнати. Консьєрж, 2 квартири на поверсі.
Додаткова інформація