3к квартира вул. Михайла Бойчука 41

  • Печерський район вул. Михайла Бойчука 41
  • Код: SF-3-282-771
  • Добавлено: 30.05.2026
  • Додати в обране
Тип ринку
Первинний ринок
Вулиця
вул. Михайла Бойчука 41
Кількість кімнат
3
Поверх
7 Поверх
Поверховість
26 поверховий будинок
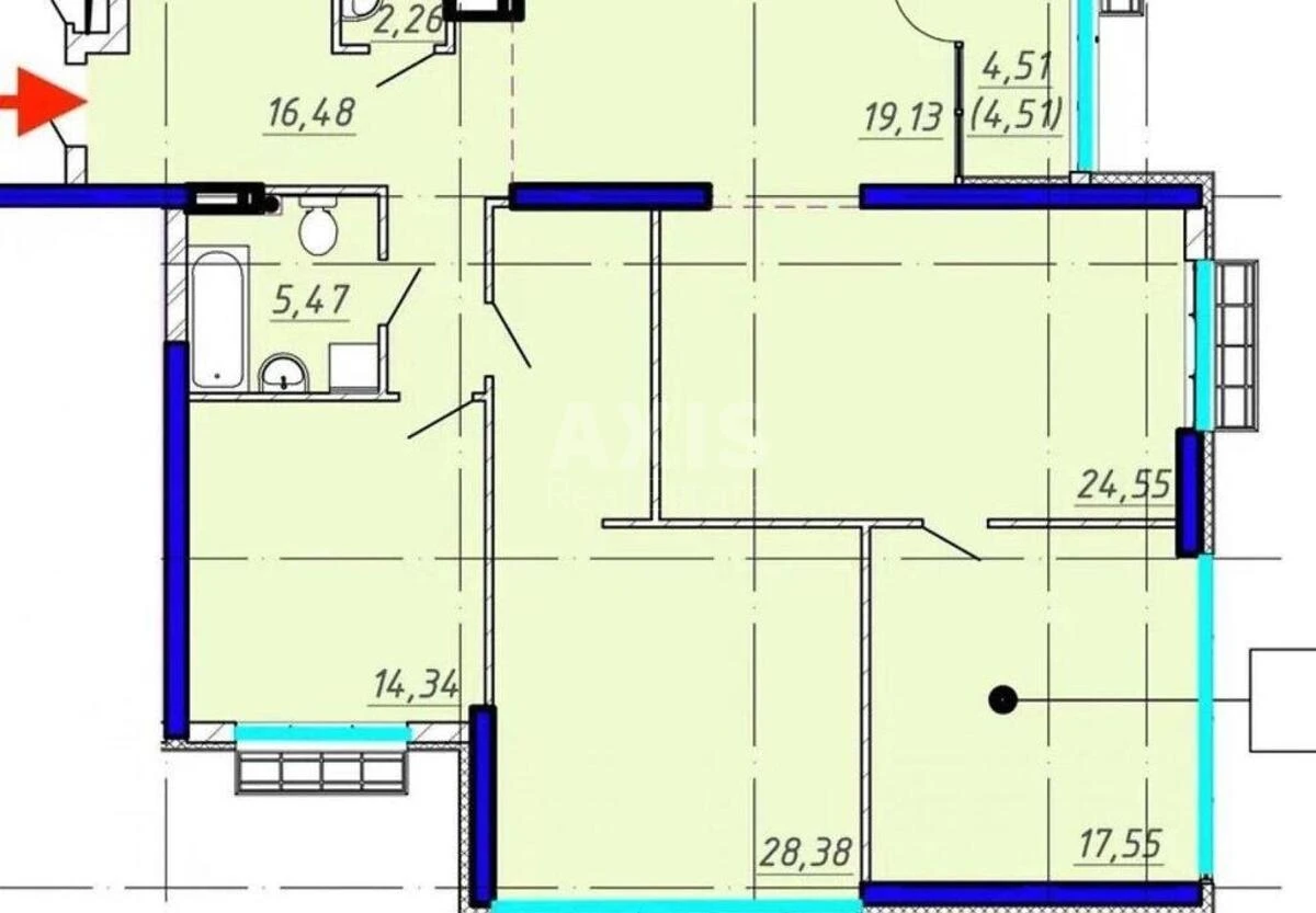
Загальна площа
134 м2
Загальний стан
Без ремонту
Ціна:
8 601 367 грн.
194 300 USD
Опис об'єкту

ЖК Новопечерська Вежа, 3 кімнатна квартира. Квартира розташована на 7-й поверх 26-поверхового будинку. Загальна площа 133 м ², житлова площа 84 м ², кухня 25 м ². Планування включає простору вітальню-студію, 3 спальні, кабінет та 2 санвузли. З вікон відкривається панорамний вигляд. У під'їзді охорона. У будинку передбачений паркінг на 200 машиномісць, є супермаркет та упорядкований двір із дитячими та спортивними майданчиками.

Схожі пропозиції