Продаж
 
              
                 
                Усі фото (8)
              
              
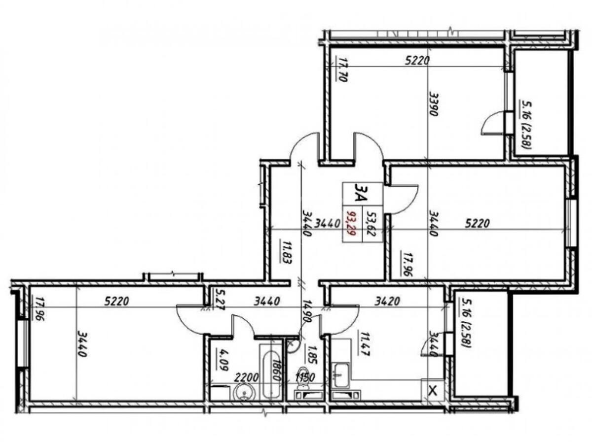
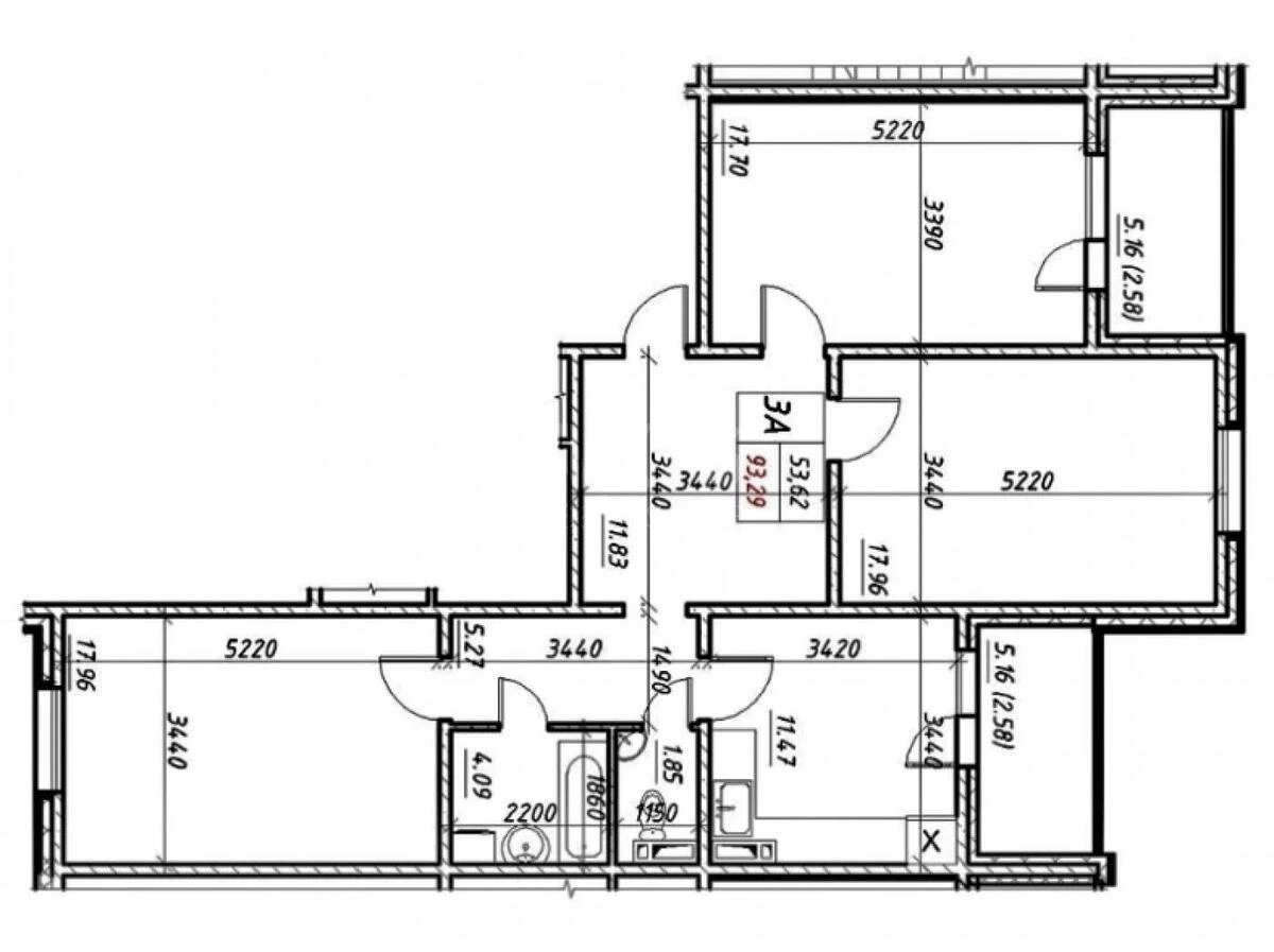
          3к квартира вул. Електротехнічна 43
- Додати в обране
- 
              Подiлитись посиланням
Тип ринку
                Первинний ринок
              Вулиця
                
                  вул. Електротехнічна 43
              Кількість кімнат
                3
              Поверх
                7 Поверх
              Поверховість
                25 поверховий будинок
                
              Загальна площа
                93 м2
              Загальний стан
                З ремонтом
              Ціна:
              3 356 285 грн.
              79 900 USD
            Опис об'єкту
          ЖК Деснянський, 3 кімнатна квартира. Житловий комплекс «Деснянський» складається з 3-х багатоповерхових будинків (25 поверхів), об'єднаних спільною прибудинковою територією та належне облаштування: квіткові клумби, зелені газони, зони відпочинку для дорослих, дитячі та спортивні майданчики. Будівництво виконується за вдосконаленими технологіями панельного будівництва, які передбачають сучасне фасадне утеплення будинків та поліпшене планування квартир.
Додаткова інформація
           
                   
                   
                   
                   
                   
                   
                   
                           
                           
                          