
3к квартира вул. Дмитрівська 45
- Додати в обране
-
Подiлитись посиланням
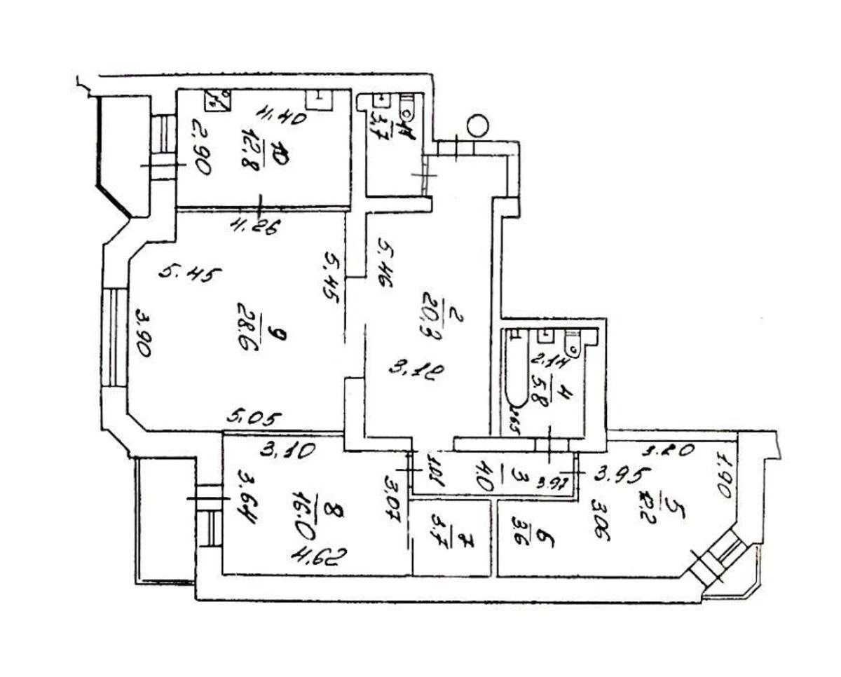
ЖК «Hoffmann Haus», 3 кімнатна квартира. Простора квартира з роздільним плануванням та авторським ремонтом, виконаним з увагою до деталей. Оснащена меблями та сучасною побутовою технікою: електрочайник, кавомашина, плита, варильна панель, духова шафа, холодильник, посудомийна машина, пральна та сушильна машини. Є телевізор, кабельне та цифрове ТБ. У квартирі — два санвузли, головна спальня з гардеробною, друга спальня, велика вітальня, кухня, ванна кімната, гостьовий санвузол з душовою кабіною та засклена лоджія. Передбачено підігрів підлоги, кондиціонер, сигналізацію, меблі на кухні, балкон та лоджію. Сучасний комплекс із індивідуальним газовим опаленням та автономністю при блекауті — водопостачання та опалення працюють незалежно. Будинок обладнаний ліфтом та консьєрж‑сервісом. Підвищений рівень безпеки забезпечується сигналізацією та охороною. Закрита охоронювана територія з підземним паркінгом та власним паркувальним місцем, а також гостьовою парковкою. Комплекс розташований у зручному місці з розвиненою інфраструктурою: поряд школа, дитячий садок, сквер, магазини та ресторани. Вдале розташування та транспортна розв’язка створюють максимальний комфорт для життя.