Продаж
 
              
                 
                Усі фото (4)
              
              
          3к квартира пр-т Правди 1
- Додати в обране
- 
              Подiлитись посиланням
Тип ринку
                Первинний ринок
              Вулиця
                
                  пр-т Європейського Союзу 1
              Кількість кімнат
                3
              Поверх
                5 Поверх
              Поверховість
                25 поверховий будинок
                
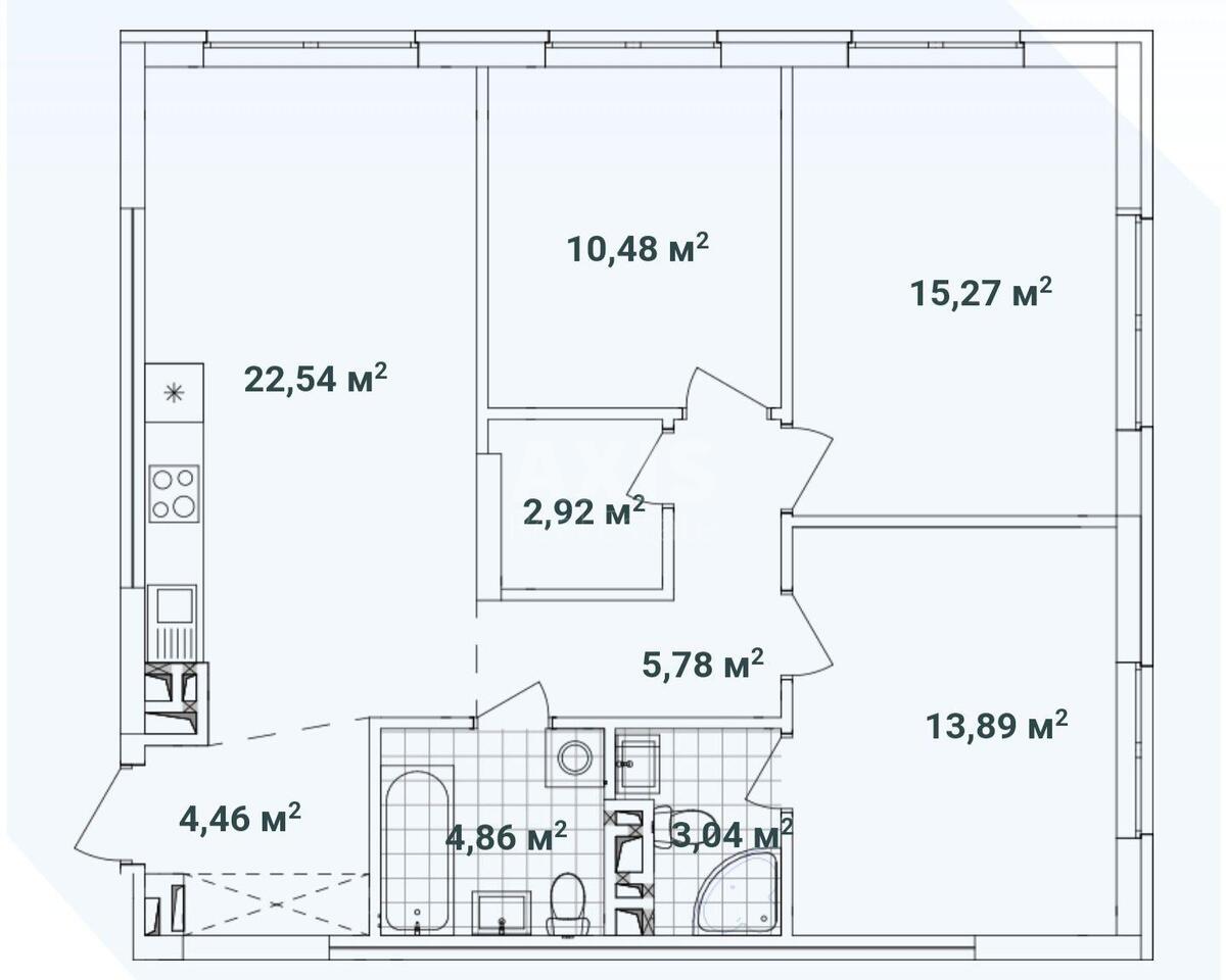
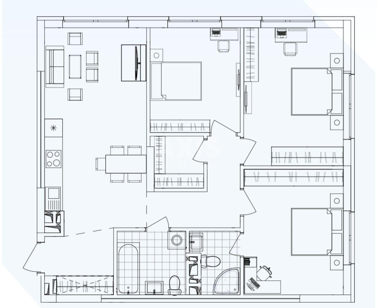
              Загальна площа
                83 м2
              Загальний стан
                Без ремонту
              Ціна:
              4 200 607 грн.
              100 000 USD
            Опис об'єкту
          ЖК Варшавський 3, 3 кімнатна квартира. Будинок 10.7, здача будинку в експлуатацію 3 квартал 2027 року. Площа 83.24 кв.м, планування 3С1, поверх 5. Вікна на схід, у двір. Закрита прибудинкова територія, дитячі та спортивні майданчики, гостьовий паркінг. Поруч є наземний паркінг, ТРЦ Ретровіль, зупинка транспорту, лісо-паркова зона відпочинку.
Додаткова інформація
           
                   
                   
                   
                           
                           
                          