3к квартира пр-т Палладіна Академіка 18/30

  • Святошинський район пр-т Палладіна Академіка 18/30
  • Код: SF-3-287-176
  • Добавлено: 05.03.2026
  • Додати в обране
Тип ринку
Вторинний ринок
Вулиця
пр-т Палладіна Академіка 18/30
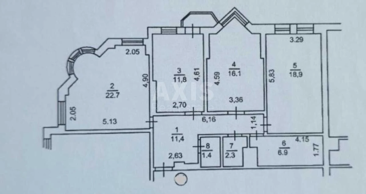
Кількість кімнат
3
Поверх
14 Поверх
Поверховість
16 поверховий будинок
Загальна площа
92 м2
Загальний стан
З ремонтом
Ціна:
6 031 315 грн.
139 000 USD
Опис об'єкту

3 кімнатна квартира. З якісними меблями та топовою технікою, все у відмінному стані. Кухня з фасадами МДФ оснащена найкращою у світі фурнітурою BLUM, включаючи підвіси, мікроліфти та висувні ящики. Робоча поверхня – натуральний гідроізольований камінь. Вбудована техніка преміального рівня: варильна поверхня Siemens, мікрохвильова піч і духовка Electrolux із потужним функціоналом і сенсорним управлінням, холодильник Samsung No Frost із зонами охолодження та камерою -18°C, посудомийна машина BOSCH, витяжка FRANKE, змішувач FRANKE із висувним шлангом. Додатково встановлено Smart-телевізор Samsung (LED), потужну пральну машину Samsung ECO Bubble (Digital Inverter), бойлер і кондиціонери. Велика шафа в спальні з фасадами зі шпону має італійське кріплення, м’яке відкривання та стопори. Є місце для ще однієї шафи в іншій спальні. Всі вікна замінені на нові з чудовим шумопоглинанням. Встановлена сигналізація з кнопкою термінового виклику та датчиками руху. Будинок дуже теплий і повністю заселений. Є як підземний, так і гостьовий паркінг. До метро Академмістечко 3–5 хвилин пішки. Поруч два супермаркети та розвинена інфраструктура.

Схожі пропозиції