3к квартира бул. Лесі Українки 7

  • Печерський район бул. Лесі Українки 7
  • Код: SF-3-274-313
  • Добавлено: 26.02.2026
  • Додати в обране
Тип ринку
Первинний ринок
Вулиця
бул. Лесі Українки 7
Кількість кімнат
3
Поверх
21 Поверх
Поверховість
31 поверховий будинок
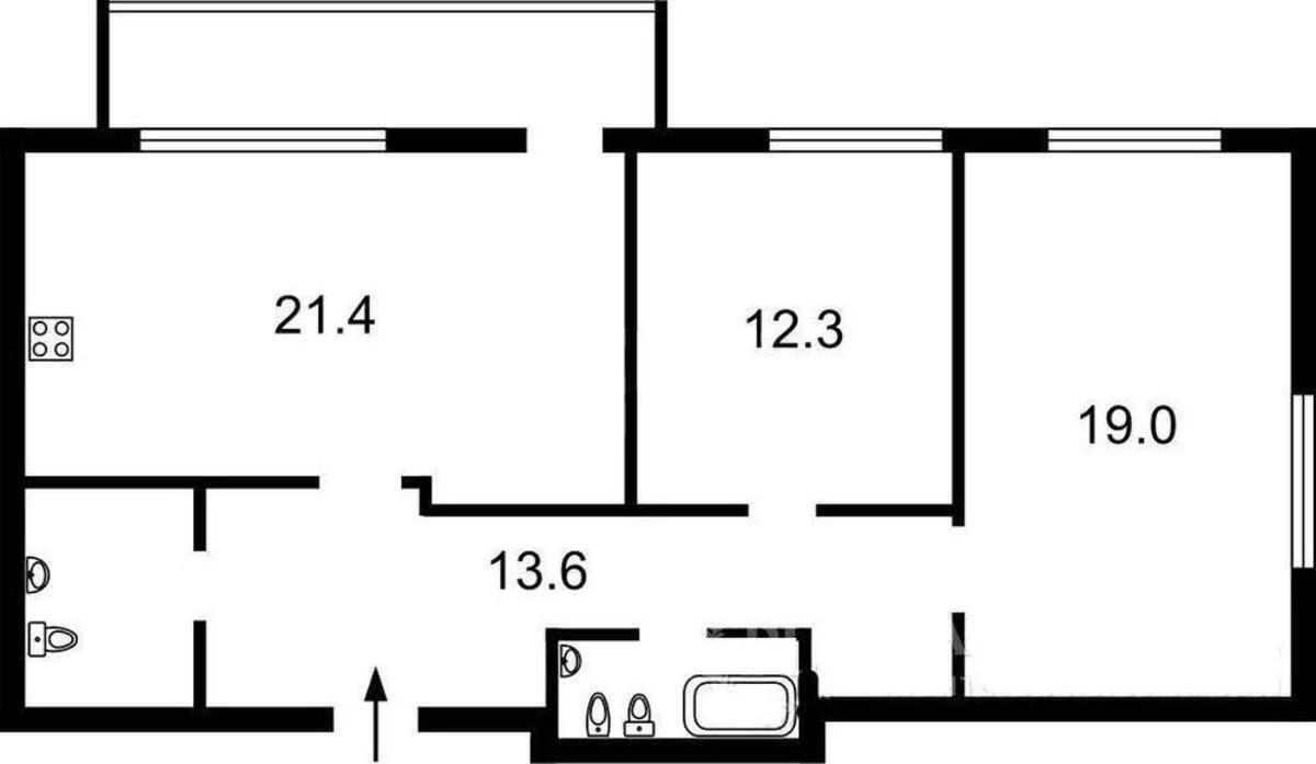
Загальна площа
81 м2
Загальний стан
Без ремонту
Ціна:
12 115 903 грн.
279 900 USD
Опис об'єкту

ЖК Jack House, 3 кімнатна квартира. Квартира продається у стані 'після будівельників'. Грамотне планування та відсутність капітальних стін усередині квартири, дозволяє втілити будь-який дизайн проект на ваш розсуд. Панорамне скління, високі стелі. ЖК 'Jack House' вважається одним із найкращих житлових комплексів Києва. Будинок знаходиться у діловому та культурному центрі міста, при цьому недалеко розташовані урядові квартали.

Схожі пропозиції