Продаж

Усі фото (12)
3к квартира бул. Лесі Українки 7
- Додати в обране
-
Подiлитись посиланням
Тип ринку
Первинний ринок
Вулиця
бул. Лесі Українки 7
Кількість кімнат
3
Поверх
21 Поверх
Поверховість
31 поверховий будинок
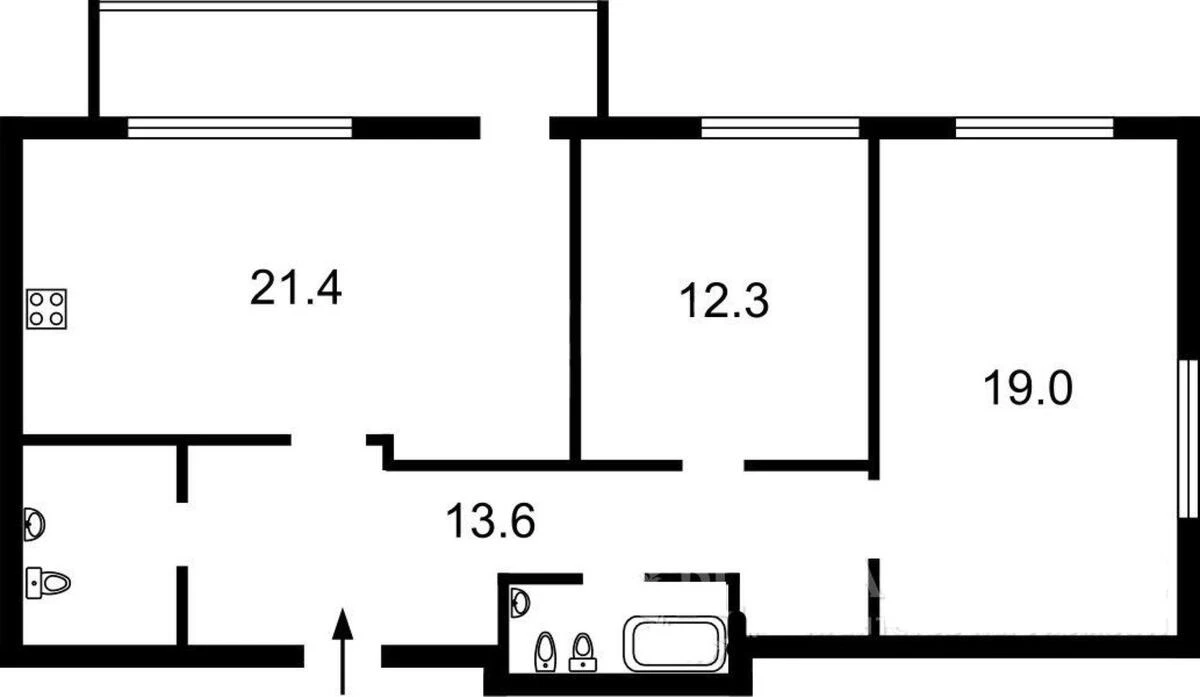
Загальна площа
81 м2
Загальний стан
Без ремонту
Ціна:
13 749 604 грн.
329 000 USD
Опис об'єкту
ЖК Jack House, 3 кімнатна квартира. Бізнес клас, охорона, підземний паркінг. Видова квартира з балконом у стані після будівельників, логічне планування, панорамне скління. Центральна локація будинку, надає максимальні зручності у проживанні. Поруч розташовані магазини, ресторани та станція метро Кловська-5 хв, гуд Вайн. До квартири є сімейне паркомісце на 2 машини , входить у вартість.
Додаткова інформація