2к квартира вул. Закревського Миколи 95Б

  • Деснянський район вул. Закревського Миколи 95Б
  • Код: SF-3-250-704
  • Добавлено: 31.05.2026
  • Додати в обране
Тип ринку
Первинний ринок
Вулиця
вул. Закревського Миколи 95Б
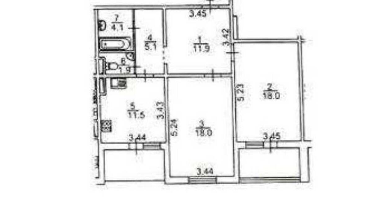
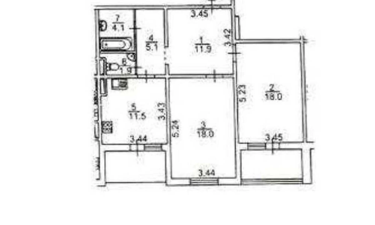
Кількість кімнат
2
Поверх
12 Поверх
Поверховість
25 поверховий будинок
Загальна площа
78 м2
Загальний стан
З ремонтом
Ціна:
4 295 142 грн.
97 000 USD
Опис об'єкту

ЖК Милославичі, 2 кімнатна квартира. Ми залишаємо всю техніку: 2 кондиціонери для комфорту в будь-яку погоду, бойлер, холодильник та інше. Також на поверсі є комора у спільному використанні. У дворі є школа та дитячий садок з облаштованим укриттям. А в будинку працює консьєрж та є додаткові двері на поверсі.

Схожі пропозиції