2к квартира вул. Січових Стрільців 44А

  • Шевченківський район вул. Січових Стрільців 44А
  • Код: SF-3-239-980
  • Добавлено: 13.11.2025
  • Додати в обране
Тип ринку
Первинний ринок
Вулиця
вул. Січових Стрільців 44А
Кількість кімнат
2
Поверх
17 Поверх
Поверховість
17 поверховий будинок
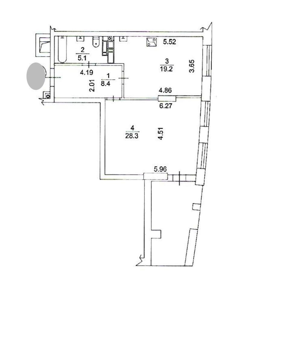
Загальна площа
67 м2
Загальний стан
Без ремонту
Ціна:
10 088 046 грн.
240 000 USD
  • AXIS Real Estate
  • AXIS Real Estate
  • AXIS Real Estate
Опис об'єкту

2 кімнатна квартира. Квартира у стані під ремонт — чудова можливість реалізувати власний дизайн-проєкт. Планування дозволяє облаштувати: простору кухню-вітальню з панорамним видом, окрему спальню, велику ванну кімнату, гардеробну або кабінет. Житловий комплекс «А52» — це сучасний будинок бізнес-класу в серці Шевченківського району: закрита територія з охороною та відеоспостереженням, дизайнерська вхідна група, просторе лобі з зоною відпочинку, підземний паркінг, швидкісні ліфти OTIS, власна інфраструктура та престижне оточення.

Додаткова інформація

Схожі пропозиції