2к квартира вул. Сагайдака Степана 101Ш

  • Дніпровський район вул. Сагайдака Степана 101Ш
  • Код: SF-3-232-442
  • Добавлено: 29.10.2025
  • Додати в обране
Тип ринку
Первинний ринок
Вулиця
вул. Сагайдака Степана 101Ш
Кількість кімнат
2
Поверх
5 Поверх
Поверховість
25 поверховий будинок
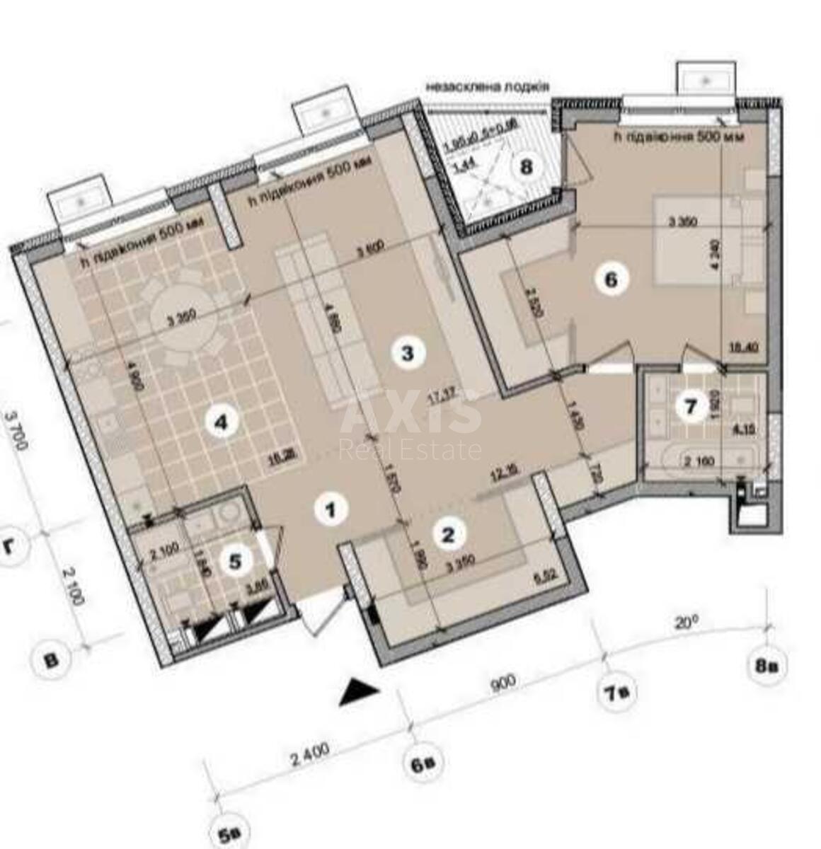
Загальна площа
81 м2
Загальний стан
Без ремонту
Ціна:
5 576 934 грн.
132 000 USD
  • AXIS Real Estate
  • AXIS Real Estate
  • AXIS Real Estate
Опис об'єкту

2 кімнатна квартира. Простора квартира з вільним плануванням, що дозволяє реалізувати будь-який дизайнерський проєкт. Можливе перепланування у трикімнатну. Приміщення без оздоблення, що дає змогу повністю облаштувати простір під власні потреби. Квартира тепла, цегляна, із великими вікнами, які виходять у затишний двір, і просторою гардеробною. Опалення забезпечується власною котельнею, що гарантує стабільне тепло у будь-який сезон. Сучасна монолітно-каркасна будівля з енергоефективним утепленням мінеральною ватою. Стіни з керамзитобетонних панелей і газоблоку забезпечують чудову тепло- та шумоізоляцію. Будинок обладнаний підземним паркінгом, гостьовими місцями, системою відеоспостереження та цілодобовою охороною. Вхідна група з консьєржем і домофоном, прибудинкова територія огороджена парканом та контролюється шлагбаумом. Житловий комплекс реалізований у форматі «місто в місті» — облаштований внутрішній двір без авто, пішохідні алеї, зелені зони та прогулянкова набережна з пірсом. На території розташовано шість дитячих майданчиків і два спортивні майданчики — для футболу та баскетболу. У пішій доступності є магазини, кафе, школи, дитячі садки, а також метро «Лівобережна». До центру Києва (Хрещатик) — близько 15 хвилин на авто.

Додаткова інформація

Схожі пропозиції