
2к квартира вул. Північно-Сирецька 1
- Додати в обране
-
Подiлитись посиланням
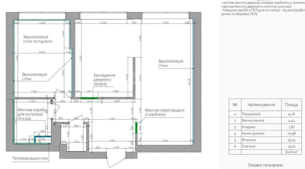
ЖК Dibrova Park, 2 кымнатна квартира. З видом на схід — вікна виходять у бік Сирецького парку. Розташована в сучасному житловому комплексі поруч із майбутньою станцією метро. Ремонт виконувався за індивідуальним дизайн-проєктом для власного проживання, однак у зв’язку зі зміною планів і переїздом в інше місто квартира виставлена на продаж. Приміщення готове до чистового етапу ремонту. Уже виконано: вирівнювання стін з підготовкою під фарбування або шпалери, прокладено всю електропроводку з підрозетниками, змонтовано систему труб та теплої підлоги у санвузлі, встановлено нові радіатори замість забудовницьких. Проведено шумоізоляцію стіни у спальні та всієї стелі, зроблена стеля з гіпсокартону з вбудованим LED-освітленням. Встановлені фільтри води на вході в квартиру. Передбачено розводку під кондиціонери, а також інвертор для резервного живлення в коморі. Будинок розташований у перспективному районі поруч із зеленою зоною Сирецького парку та активно розвивається — нова інфраструктура, майбутня станція метро за декілька хвилин ходи.